





Discover the perfect setting for your "Turn Key Dream Home" on this beautiful and private 4-acre treed lot, just a short walk to the boat launch on scenic Varty Lake. This exceptional property offers both tranquility and convenience, with an 8 GPM drilled well already in place. Ideally located just five minutes from the charming village of Yarker, you'll enjoy access to everyday essentials including a grocery store, LCBO, library, daycare centre, waterfront park and playground, churches, fire hall, and a variety of home-based businesses. The nearby community of Camden East-only a four-minute drive-offers gas, pizza takeout, an LCBO outlet, local produce, fresh baked goods, and more. Positioned centrally between Kingston and Napanee, both just 18 minutes away, this location provides the perfect balance of rural serenity and urban accessibility. To be built by NorthPeak Homes, a Tarion-registered builder, The Pinnacle is a thoughtfully designed 1,780 sq. ft. executive bungalow offered at the advertised price with the Signature trim level (see specifications). Buyers have the opportunity to customize finishes, explore upgrades, or value-engineer options to suit their vision and budget. Comprehensive documentation-including survey, hydrogeological report, and development agreement-is available. Additional models and fully custom home design options are also offered. NorthPeak Homes provides a complete, turnkey experience including custom home design, full construction and site management, as well as guidance with financing and project budgeting.
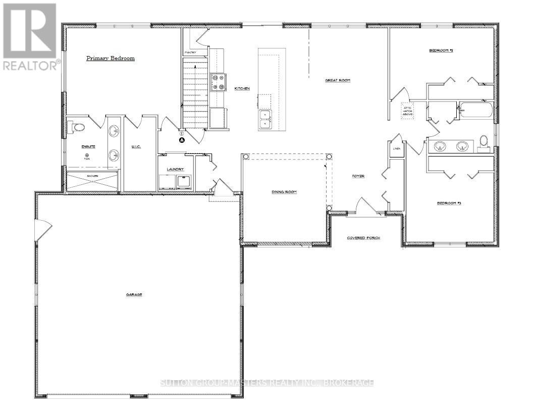
| Room | Level | Size |
|---|---|---|
| Primary Bedroom | Main level | |
| Bedroom 2 | Main level | |
| Bedroom 3 | Main level | |
| Kitchen | Main level | |
| Dining room | Main level | |
| Great room | Main level | |
| Bathroom | Main level | |
| Bathroom | Main level |