











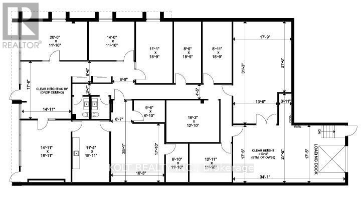
Rare corner unit in well maintained complex with with immediate accessto HWY 401. Ample parking. Approximately 87% professional finished offices with 2 washrooms and kitchenette. Floor plan available. 100%a/c. TTC at door. Lots of room for shipping, 53 ft trailer access to be confirmed by Purchaser. Retail or food uses to obtain written consent of the board. Measurements and permitted uses to be confirmed by purchaser.