




















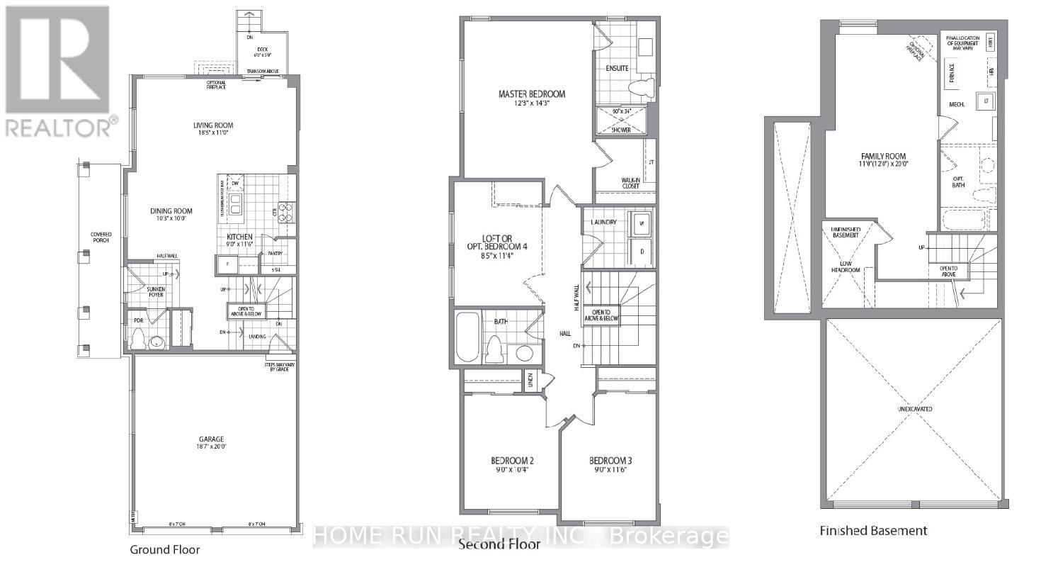
Welcome home to this very private and well maintained 4 Bedroom End unit Townhouse located in Findlay Creek. This large end unit townhome features a full 2 doored double garage equal in size to most singles. Home includes Stainless Steel appliances including the Stove, Fridge, Dishwasher and Microwave Hoodfan. Also includes Washer, Dryer, A/C and automatic garage door openers. Includes all blinds in bedrooms. Upgraded Quartz Countertops in Kitchen and Primary Ensuite. Hardwood and tile flooring throughout main level. Finished Family Room in Basement Smart home features (including Nest thermostat and smart switches) No rear neighbours and no easements so backyard is very private. Located close to shopping, schools, parks and recreation. 7 minutes from OC Transpo Leitrim Station. Brand new elementary school being built within walking distance.