



















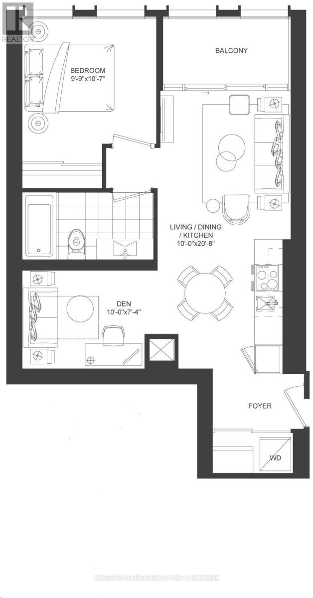
Located at Dundas & University, brand new 1+1 luxury Artist Alley condo. The large den has already been perfectly set up and used as a second bedroom, as shown in the photos. This room is fully furnished with a bed, storage cabinet, computer desk/chair, shelving unit, clothing rack, and bedside table, making it a comfortable and functional separate room. Full-length floor-to-ceiling curtains have also been installed to provide additional privacy and comfort, creating a more enclosed and separated living space.This 1+1 layout is ideal for a young couple or a small family with a child. It offers the functionality of a two-bedroom unit with two separate living spaces, while maintaining the more affordable pricing of a 1+1 condo. It provides excellent flexibility for sleeping, working from home, or creating a private area for family members without interference.Minutes to shops, restaurants, Eaton Centre, St. Patrick Station, and more. Numerous amenities, including a 24-hour concierge.
| Room | Level | Size |
|---|---|---|
| Living room | Flat | |
| Dining room | Flat | |
| Kitchen | Flat | |
| Primary Bedroom | Flat | |
| Den | Flat |