




















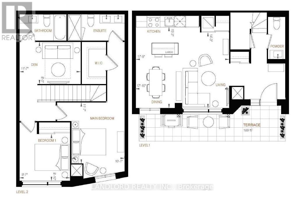
Vacant move in ready 1264 sqft unfurnished professionally managed two-level stacked town house 2-bedroom 2.5-bathroom plus den, part of The Keeley: A new development overlooking the lake of Downsview Park and walking distance to Downsview train & subway stations (little as ~20 minutes to downtown)! Parking and locker included. Layout is two levels, up to 9' ceiling heights, first floor consisting of open plan kitchen/living area (walking out to the fully fenced front patio via large foyer), 2pc bathroom by foyer, double-width laundry closet, two huge windows facing to street. Second floor consisting of primary bedroom (with 3pc bath, east exposure, walk in closet, second bedroom (with built-in closet) opposite on the layout from 4pc bath and den overlooking stairwell. Floor plans in listing images and attached to listing. Features and finishes include: engineered wood flooring throughout, stone countertops, stone backsplash, Whirlpool stainless steel appliances, Blomberg laundry machines, two-tone kitchen cabinets, tiled tub & shower stalls, pot lights, and more! || Appliances: Fridge, electric range, range microwave, dishwasher, washer, dryer. All existing window coverings. All existing light fixtures. || Building Amenities: Refer to listing images to see all! || Utilities: Metering of utilities by Carma.