



















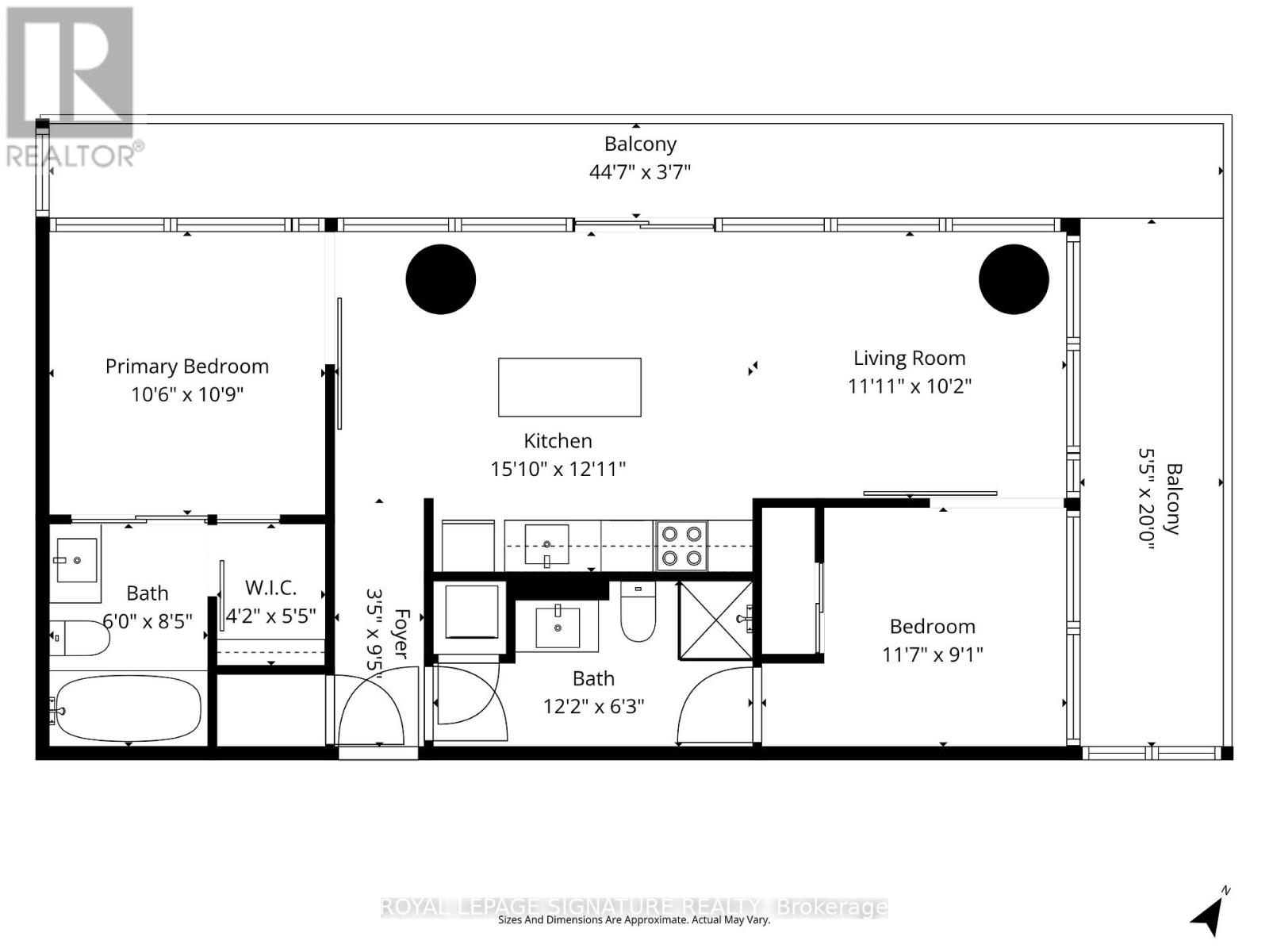
Welcome to suite #1103, a large corner unit in the heart of the Distillery District. The modern kitchen features stainless steel appliances and a breakfast island overlooking the combined living and dining space. Floor-to-ceiling windows featuring custom blinds throughout bring in abundant natural light and open to a wraparound terrace with city views. A split-bedroom layout places the bedrooms on opposite sides of the unit for added privacy. The primary bedroom includes a walk-in closet, blackout blinds, and a 4-piece ensuite. The second bedroom offers a closet and its own 3-piece ensuite. Wonderfully maintained, this suite offers over 800 sq ft of interior living space plus the expansive terrace. Located steps from shops, restaurants, and cafes in the Historical Distillery District, with easy access to public transit and parks. Includes parking and locker.