



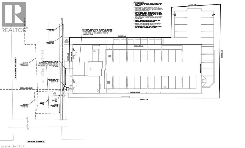
Rare, fully prepared development opportunity in the heart of Hespeler Village. Ideally located steps from the Speed River, boutique shops, cafés, and established residential neighbourhoods, this property offers the perfect blend of small-town charm and long-term investment potential. Site plan approved for 40 units and one cground floor commercial unit, this development offers a profitable mix of 1-2 and 3 bedroom units. Importantly, this site is not subject to the current regional development freeze related to municipal water servicing constraints. As one of the few areas in Waterloo Region where water allocation remains available, this property provides a significant advantage—allowing buyers to proceed without the uncertainty impacting many other projects. All required permits have been secured and fully paid, and the purchase price includes all development charges. With key approvals in place and major upfront costs already addressed, this is a true turnkey-ready opportunity that minimizes risk, shortens timelines, and accelerates the path to construction. Surrounded by a mix of historic character and thoughtful new development, 12 Tannery Street East presents an exceptional opportunity for builders and investors seeking a strategic project in one of Cambridge’s most desirable village settings. Full documentation available upon request.