









Welcome to Wildan Estates II, an exclusive new community in Freelton offering custom-built homes on spacious half-acre lots with municipal water, three-car garages, up to 3500 sq. ft. of upscale living. Choose from five thoughtfully designed models bungalows, bungalofts, and two storey homes featuring gourmet kitchens, luxurious bathrooms, 9-foot ceilings, upgraded insulation, EnergyStar windows and high-efficiency HVAC systems. Backed by Tarions warranty, these homes blend quality craftsmanship with rural charm. Nestled between Hamilton and Guelph, the charming village of Freelton offers a serene, scenic setting with a strong sense of community perfect for those seeking a quiet lifestyle without sacrificing convenience. Built by a trusted local homebuilder with over 30 years of experience, each home in Wildan Estates II combines quality craftsmanship with modern design to create a truly exceptional living experience
| Room | Level | Size |
|---|---|---|
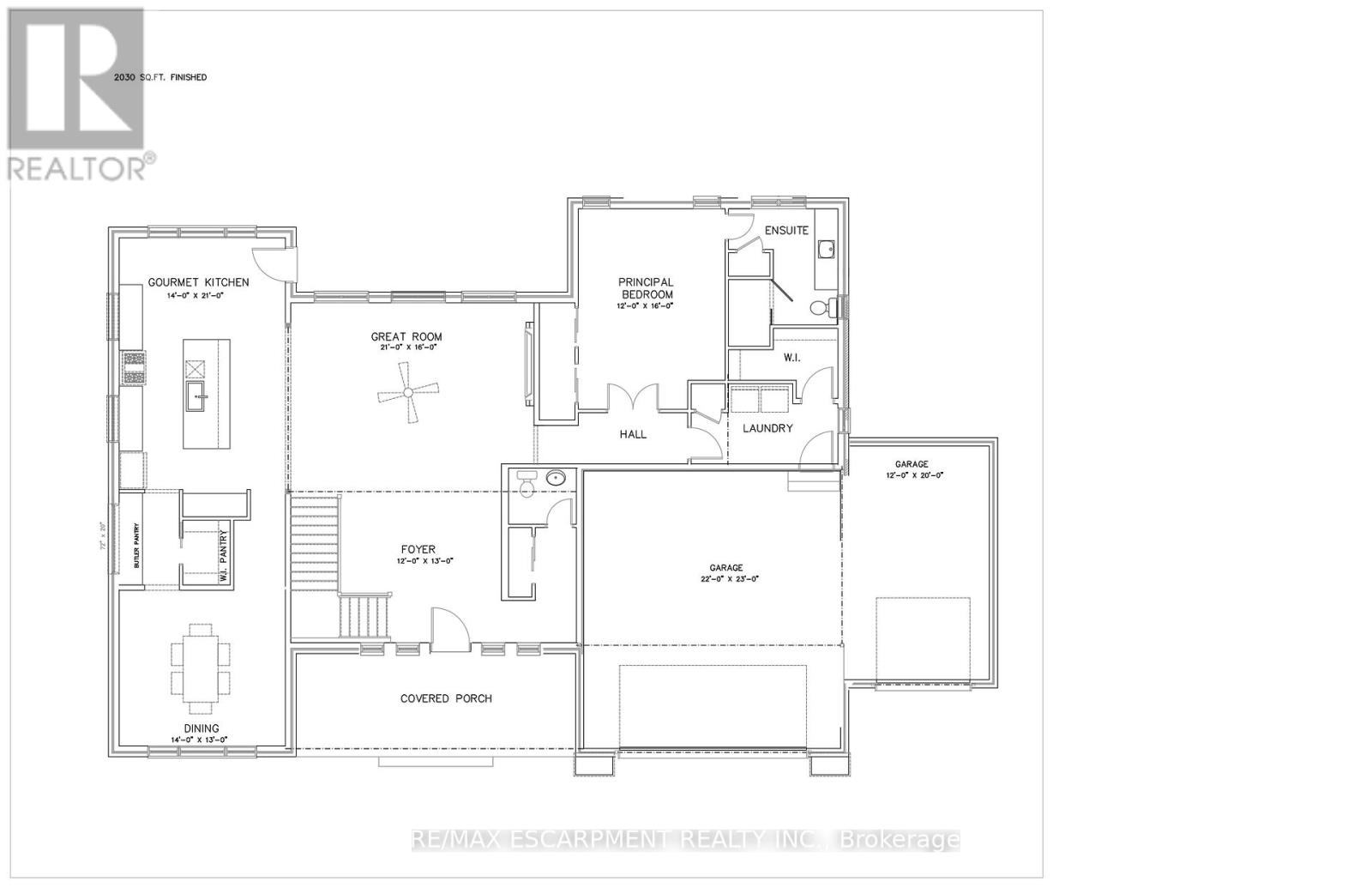
| Foyer | Main level | |
| Mud room | Main level | |
| Great room | Main level | |
| Dining room | Main level | |
| Kitchen | Main level | |
| Office | Main level | |
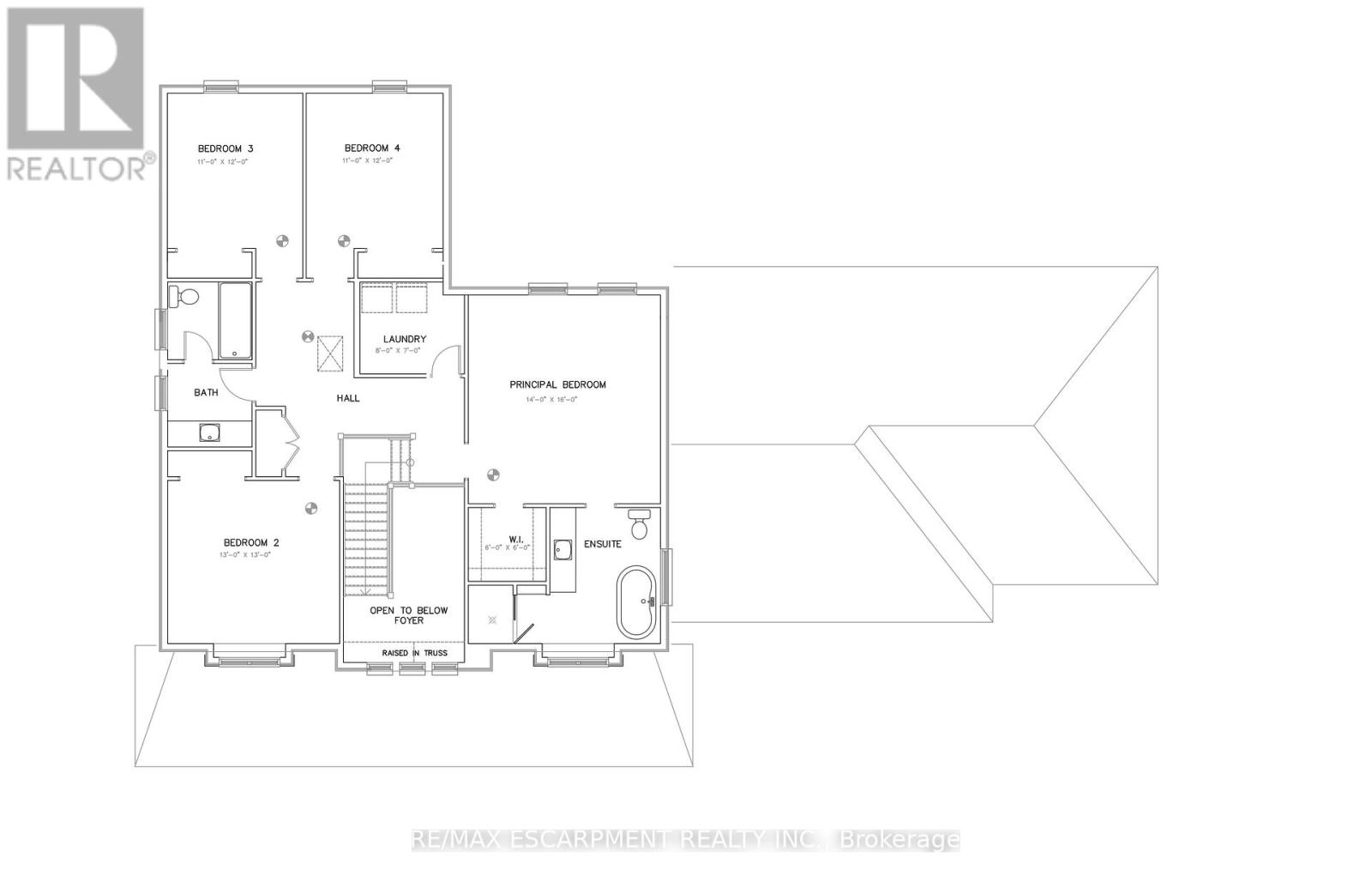
| Primary Bedroom | Second level | |
| Bedroom | Second level | |
| Bedroom | Second level | |
| Bedroom | Second level | |
| Laundry room | Second level |