


















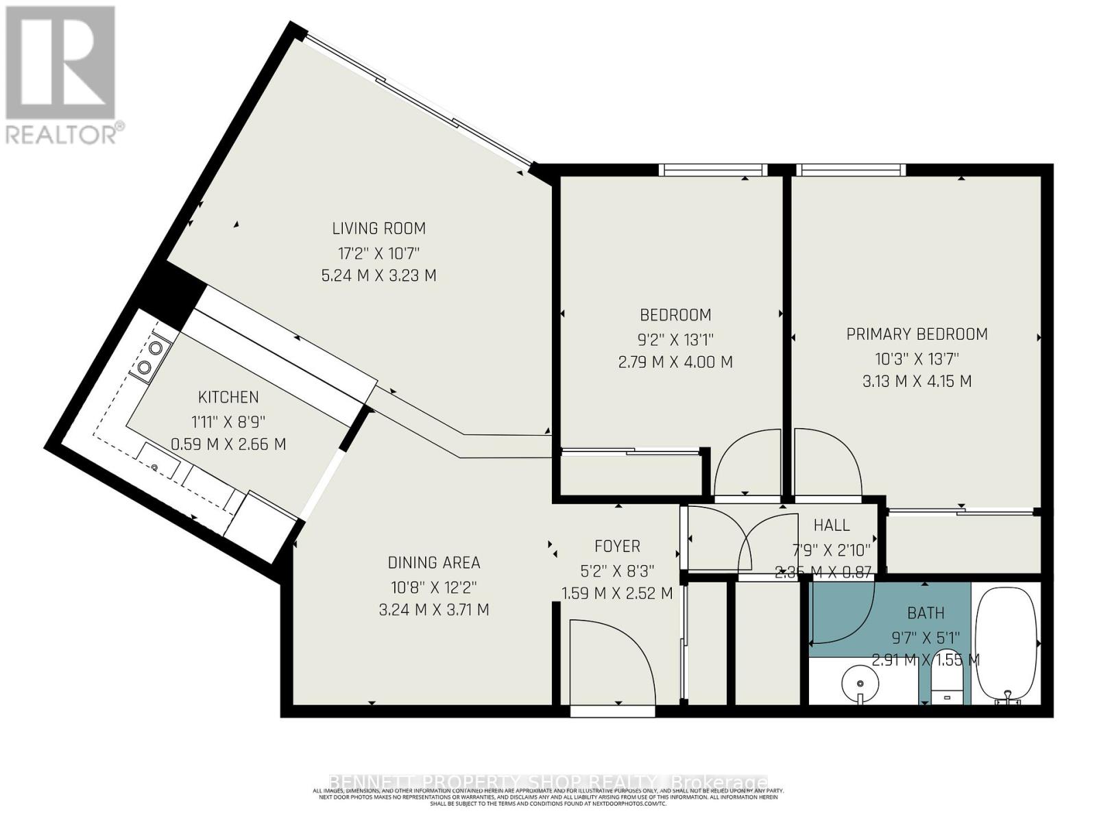
Budget with true confidence - no surprises, all in living! One fee, all-inclusive condo luxury lifestyle! Beautiful, stunning Ottawa River views await in this cozy 2-bedroom, 1-bathroom condo on the 12th floor at Ambleside One, right in Ottawa's peaceful west-end riverfront. The open living area feels bright and welcoming, with plenty of natural light from big windows and those gorgeous river views pulling you right in. Step out onto the private balcony for your morning coffee to watch the sun rise over the water and Gatineau Hills... It's the perfect escape. Both bedrooms are nicely sized for comfort, with a full bathroom keeping things simple and convenient. You'll also get the ease of underground parking and storage. The building feels like a little resort: there's a great pool, sauna, fitness centre, party room, library, workshop, tuck shop, and more to enjoy whenever you want. Just steps away are the Ottawa River Parkway paths for walks, cycling, skiing, or jogging, plus Britannia Park, the beach, sailing club, shops, restaurants, and quick transit access. It's a relaxed, riverside lifestyle that's hard to beat! 24 hours irrevocable on all offers. Some photos are digitally enhanced.
| Room | Level | Size |
|---|---|---|
| Foyer | Main level | |
| Dining room | Main level | |
| Kitchen | Main level | |
| Living room | Main level | |
| Primary Bedroom | Main level | |
| Bedroom 2 | Main level | |
| Bathroom | Main level |