

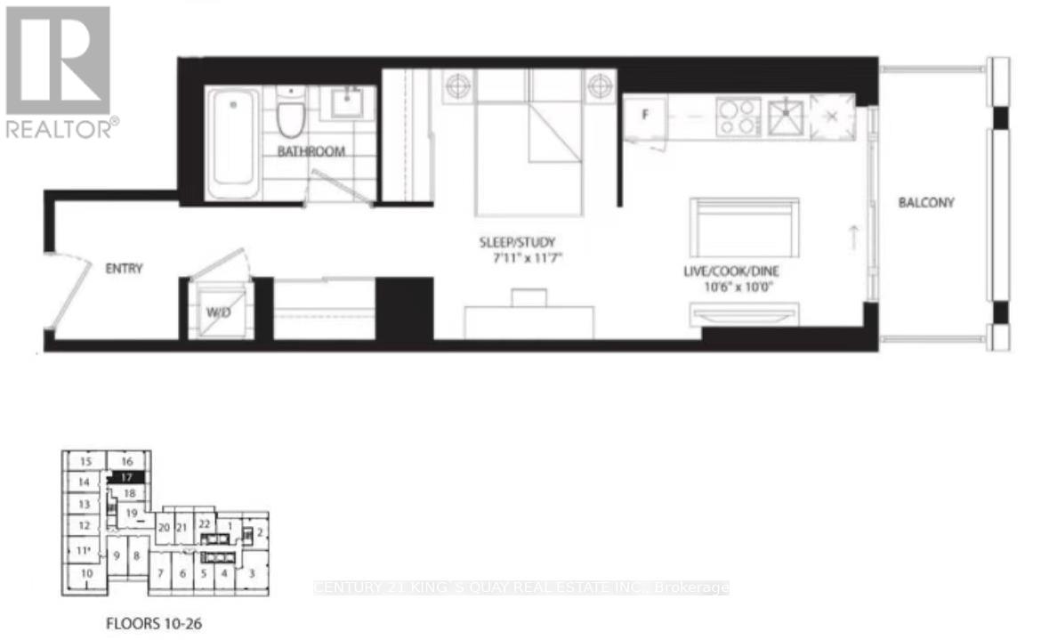
Big & Spacious Studio Condo Located On Dundas & Yonge In The Heart Of Downtown Core. Open Concept, 9' Ceilings And Floor To Ceiling Windows. Steps To Eaton Centre, Toronto Metropolitan University, U Of T, Sick Kids, Mount Sinai Hospital, And Many More.