










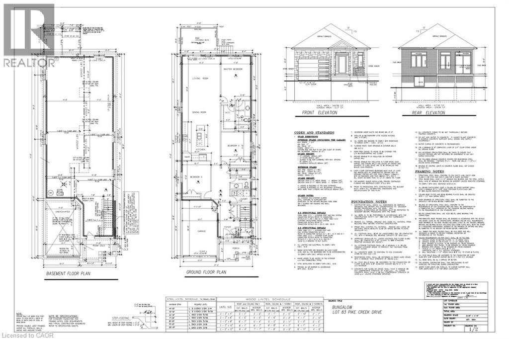
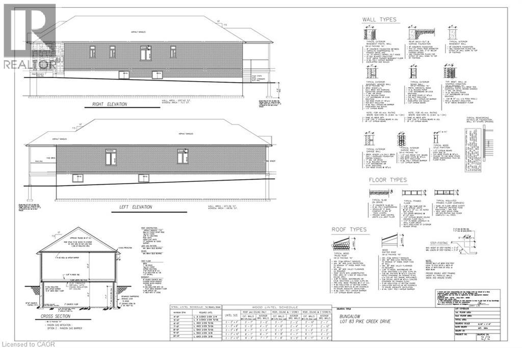
Welcome to High Valley Estates, where nature meets modern living in the heart of Cayuga. This stunning custom-built bungalow offers 3spacious bedrooms and 2 full baths, including a luxurious primary en-suite designed for comfort and style. Situated on an oversized lot, this home provides ample yard space and greater distance from neighbouring properties ensuring privacy and tranquility. The subdivision backs ontoPike Creek, offering direct access to the conservation area for peaceful nature walks while remaining shielded from the towns hustle and bustle.Outdoor enthusiasts will love the proximity to the Grand River, perfect for kayaking, fishing, and riverside relaxation. Plus, Lake Eries beautiful beaches are just a short 20-minute drive away. Families will appreciate the convenience of nearby elementary and high schools, and commuters will benefit from the easy 30-minute drive to Hamilton. This home is built with a 9-foot ceiling basement, offering in-law suite potential with space for up to two additional bedrooms, making it ideal for multi-generational living or rental income opportunities. Don't miss your chance to own a slice of serenity in High Valley Estates where nature, comfort, and convenience come together.
| Room | Level | Size |
|---|---|---|
| Laundry room | Main level | 5'6'' x 7'6'' |
| 4pc Bathroom | Main level | |
| Bedroom | Main level | 10'7'' x 12'0'' |
| Bedroom | Main level | 11'0'' x 11'0'' |
| Full bathroom | Main level | |
| Primary Bedroom | Main level | 11'0'' x 11'0'' |
| Living room/Dining room | Main level | 14'3'' x 24'9'' |