












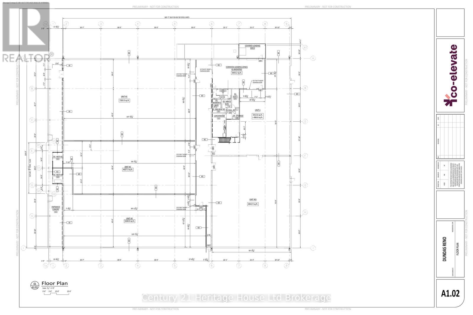
High-Exposure Commercial Opportunity - Woodstock, ON, Rare opportunity to acquire a standalone commercial building totaling over 29,000 SF on a 2.732-acre site with 208 ft of frontage on Dundas Street, Woodstock's primary commercial corridor. Located at a signalized intersection just off Hwy 401 and adjacent to Toyota Motor Manufacturing Canada, offering excellent visibility and access.Zoned M3-11, permitting a wide range of retail, commercial, warehousing, and light industrial uses. 24,000 SF of divisible space available. Building features include 18' clear height, 1 loading dock, 2 grade-level doors, 200A | 600V 3-phase power, sprinklered, LED lighting, pylon signage, and ~1 acre of fenced, secured outdoor storage. Surrounded by established industrial and retail users in a rapidly growing market.Ideal for owner-users, investors, or redevelopment.