



















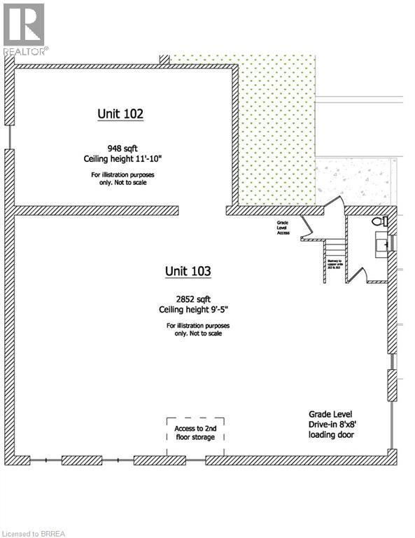
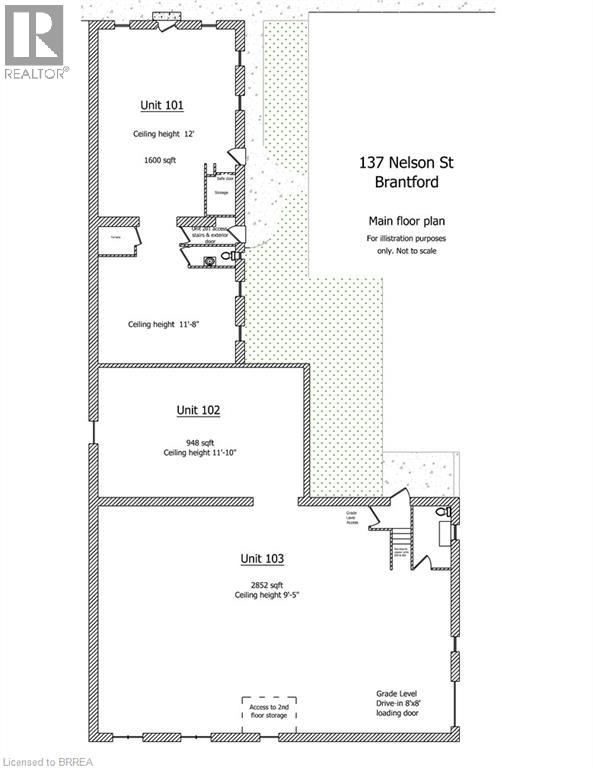
Just steps from Clarence Street and the heart of downtown Brantford, this beautifully updated and revitalized historic mixed-use building offers a range of flexible leasing opportunities. This unit totals 2,750 sq ft with part of the original structure and adjoining newer wearhouse area. There is a grade level 8 x 8 shipping door leading to a large parking lot. Additionally there is open access to Unit 203 above and multiple unit configurations additionally available, ideal to create a custom footprint tailored to your operational needs. Each unit includes onsite parking and benefits from close proximity to public transit, the university campus, and all the amenities downtown Brantford has to offer. A rare opportunity to position your business in a character-rich building with modern functionality in a high-visibility, high-demand location. Need more space? These units combine well with unit 203 & 303 (MLS®#40801664 & 40801681).