














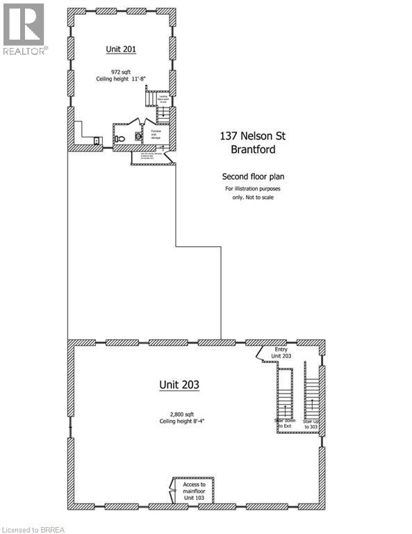
Just steps from Clarence Street and the heart of downtown Brantford, this beautifully updated and revitalized historic mixed-use building offers a range of flexible leasing opportunities. This second floor approx 1000 sq ft unit features 9'-9 high ceilings and elegant finishes, previously used as a professional photography studio. Need more space? The building has multiple unit configurations available, including office, retail, private studio, warehousing, and storage - ideal for businesses of various sizes and industries. Units may be leased individually or combined to create a custom footprint tailored to your operational needs. Need more space? This unit combines well with unit 101 & 102/103 (MLS®#40800509 & 40801634).Each unit includes onsite parking and benefits from close proximity to public transit, the university campus, and all the amenities downtown Brantford has to offer. A rare opportunity to position your business in a character-rich building with modern functionality in a high-visibility, high-demand location.