













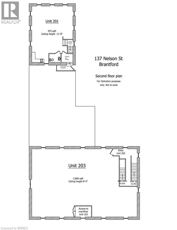
Just steps from Clarence Street and the core of downtown Brantford, this beautifully revitalized historic mixed-use building offers flexible leasing opportunities to suit a wide range of business needs. This second-floor 2,550 sq. ft. unit features 9-foot ceilings and is well suited for storage use or conversion to office or studio space.The building offers multiple unit configurations, including office, retail, private studio, warehousing, and storage options. Units may be leased individually or combined to create a customized footprint tailored to your operation. Need more space? This unit combines well with units 102/103 & 303 (MLS®#40801634 & 40801681).Each unit includes onsite parking and benefits from excellent access to public transit, the university campus, and downtown amenities. A rare opportunity to locate your business in a character-rich building offering modern functionality in a high-demand, central location.