




















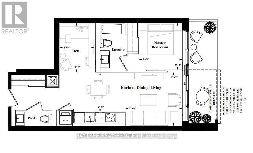
Welcome to The Davis by Rose Corp, where modern living meets convenience in Newmarket! Ideally situated just steps from public transit, shopping, restaurants, schools, parks, and more, this residence offers the perfect blend of lifestyle and convenience in one of Newmarket's most desirable communities.This 1-bedroom + den, 2-bathroom suite boasts 640 square feet of thoughtfully designed living space. Enjoy a bright east-facing exposure and a private balcony, while the versatile den serves as a home office, study, or extra living area. The functional layout maximizes comfort and efficiency.Building amenities include a guest suite, party room, kids' playroom, rooftop terrace, pet spa, and visitor parking. Parking is included, adding to the convenience and value of this fantastic opportunity.Experience modern, stylish condo living in a vibrant, well-connected neighbourhood.