




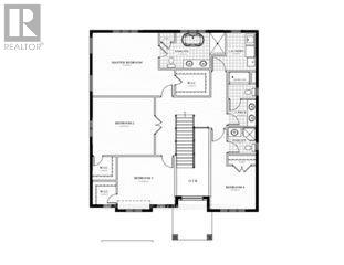
TO BE BUILT. Welcome to this stunning 2-storey home in the growing community of Lucan, offering2,600 sq ft above grade with 4 bedrooms and 3.5 bathrooms. Situated on a premium 55' lot backing onto open farmer's fields, this property delivers privacy and peaceful views rarely found in newer subdivisions. The thoughtfully designed main floor features engineered hardwood flooring and a modern kitchen with stone countertops, perfect for both everyday living and entertaining. Upstairs, the spacious primary suite offers a spa-like ensuite complete with glass shower, soaker tub, and walk-in closet. Three additional bedrooms, including a secondary bedroom with its own ensuite, along with well-appointed bathrooms and convenient upper-level laundry, provide exceptional functionality for families. Built by Waverly Homes, this design offers a functional layout with the added benefit of customizable floor plan options to suit your needs. The 55' lot allows for a 2.5 car garage option. Enjoy the perfect balance of small-town charm and convenient access to schools, parks, and everyday amenities. Located just 17 minutes from London
| Room | Level | Size |
|---|---|---|
| Kitchen | Main level | |
| Great room | Main level | |
| Dining room | Main level | |
| Office | Main level | |
| Mud room | Main level | |
| Primary Bedroom | Second level | |
| Bedroom 2 | Second level | |
| Bedroom 3 | Second level | |
| Bedroom 4 | Second level | |
| Laundry room | Second level |