













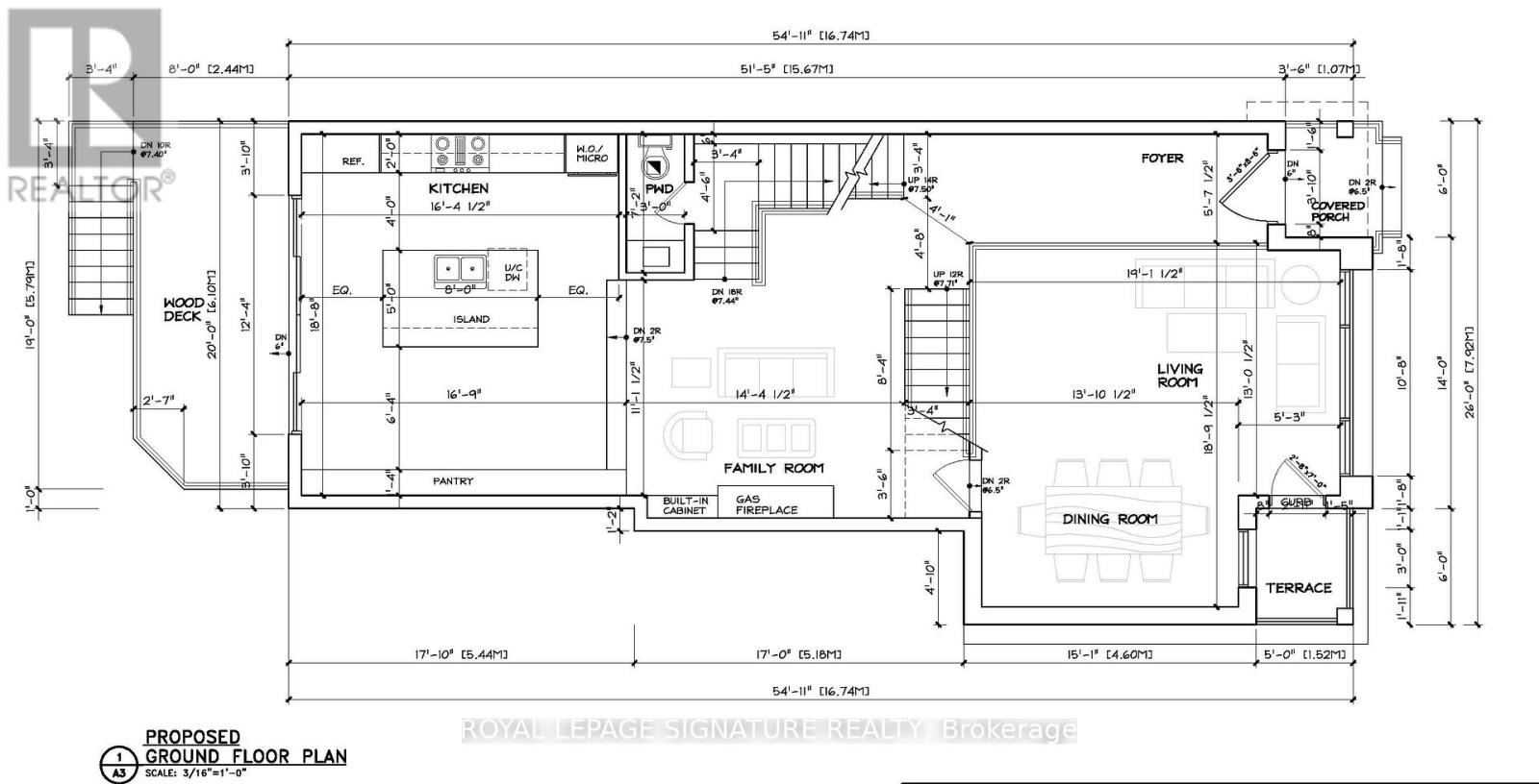
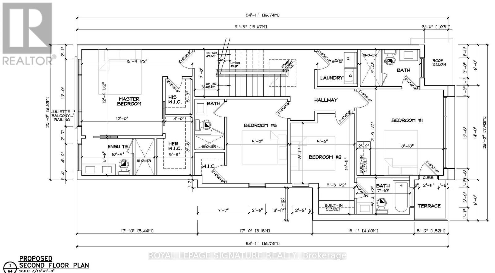
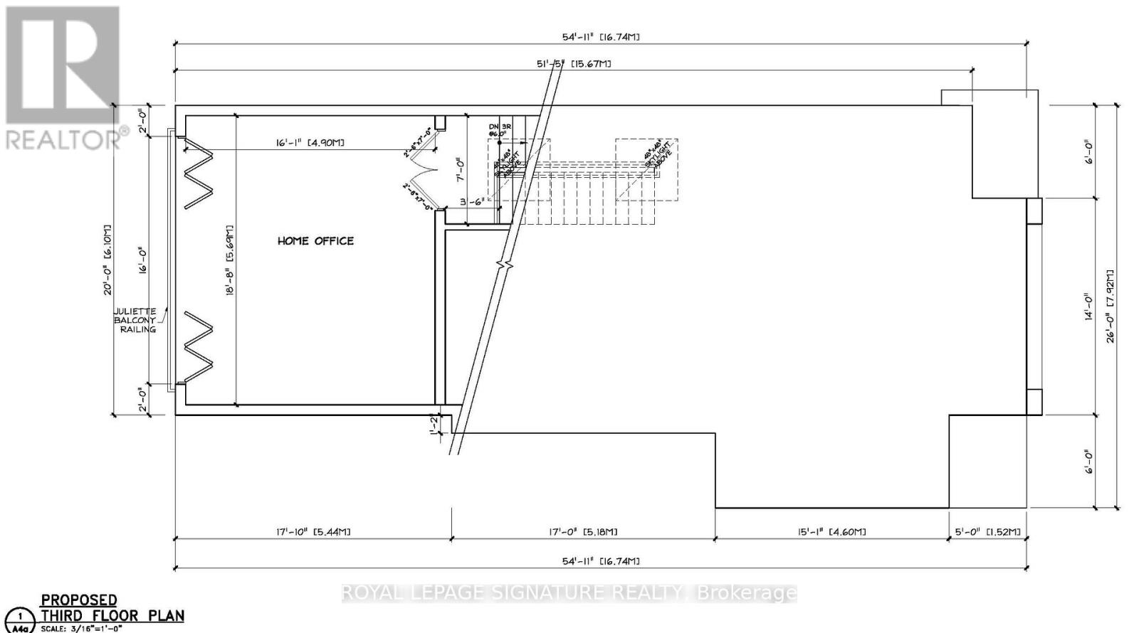
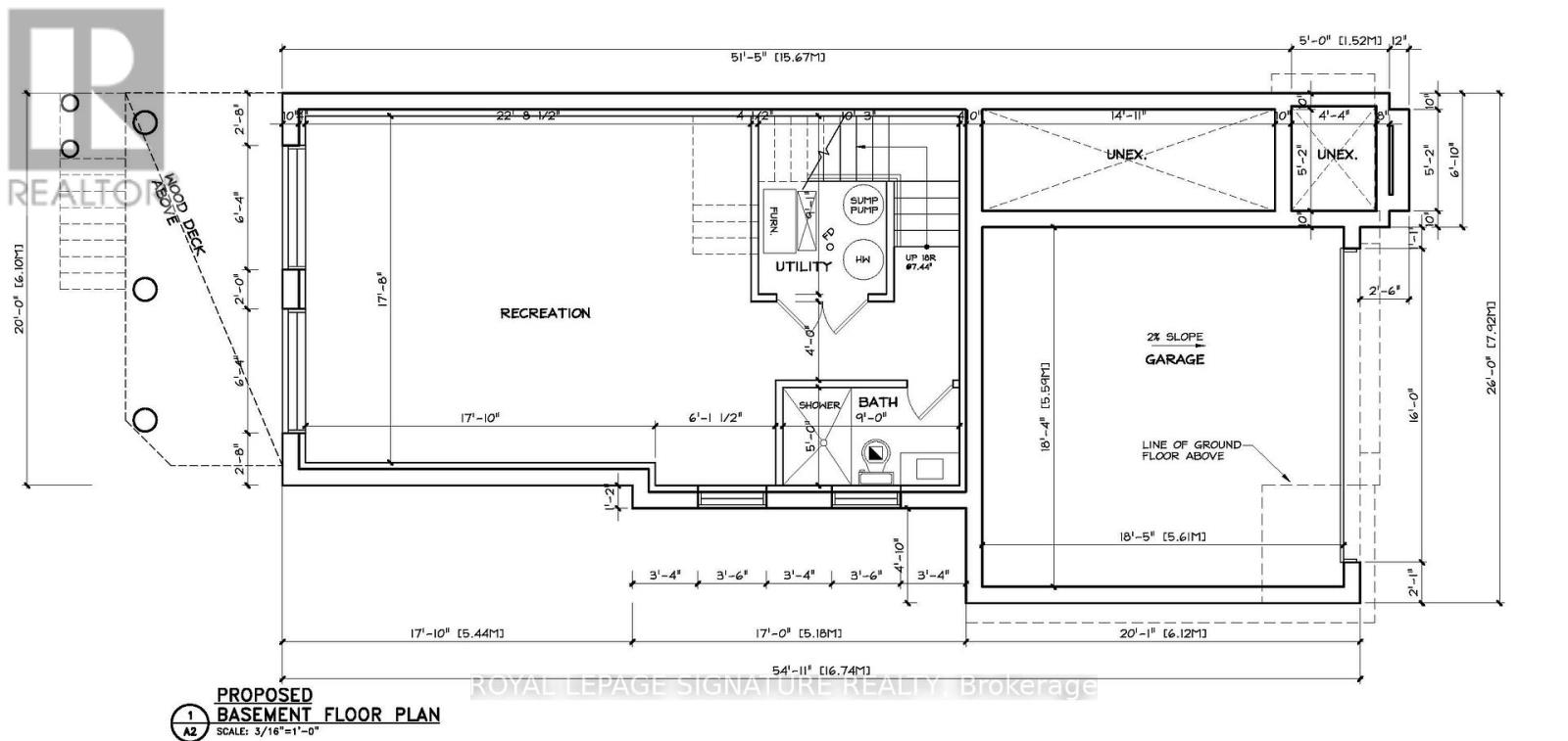
Attention builders!! Severance Approved for this 75 x 150 foot lot to create two Lots of 37.5 x 150 Ft backing onto Rotary Peace Park and overlooking Lake Ontario!! Only Steps from the Lake and neighbourhood Beach! Building Plans ready to build two 2,723 sqft homes with open concept main floor, 4 Bedrooms on 2nd level and a massive 3rd floor fully enclosed Roof Terrace overlooking Lake Ontario! Property is backing onto the park that can be accessed via a gate directly from the backyard! The opportunities are endless with this property offering a perfect open canvas to build two dream homes or lakeside retreat. Fantastic views of park and lake. Conveniently located close to an abundance of family amenities with waterfront trails and sports facilities including Rotary Peace Park, Beach and Outdoor Pool and Colonel Samuel Beach Park. Steps to the waterfront and a small beach. Just a few minutes drive to The QEW & GO Station. Close walking distance to affluent schools, shopping, restaurants, public transportation and so much more!