



















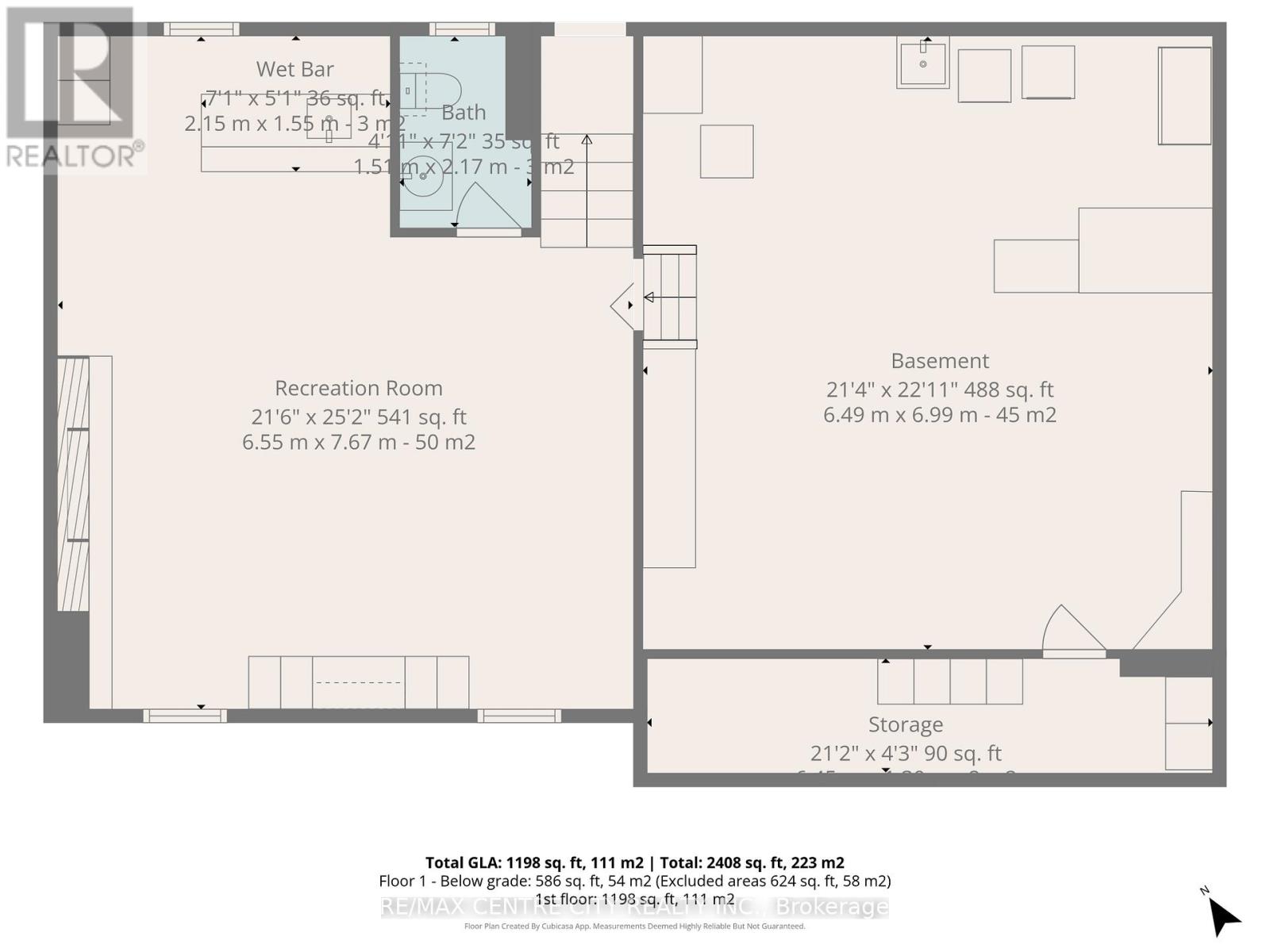
Welcome to 18 Porter Place, a lovingly maintained 4-level side split tucked away at the end of a quiet cul-de-sac in the heart of St. Thomas. Built in 1977 and proudly owned by the same owner, this home showcases true pride of ownership throughout. Enjoy the convenience of being within walking distance to Mitchell Hepburn Public School, nearby parks, and walking paths, making this an ideal location for families and outdoor enthusiasts alike. Upon entering the foyer, you're welcomed into a bright and inviting living room, highlighted by a large south-facing bay window that fills the space with natural light. The main level also features a formal dining area and an eat-in kitchen overlooking the fully fenced backyard. Upstairs, you'll find a 4-piece bathroom and three generously sized bedrooms, offering comfortable space for the whole family. The lower level is perfect for entertaining, featuring a spacious rec room with a gas fireplace and wet bar, along with a convenient 2-piece powder room. A few steps down, the basement level offers a large utility and laundry room with abundant storage, as well as a cold room ideal for food prep or canning. Step outside to enjoy a fully enclosed sunroom, a large double car garage, and a fully fenced backyard complete with an outdoor shed. With a generous lot size, there's plenty of room to add a pool, create gardens, or design a larger outdoor entertaining space. While the home retains its nostalgic style, it offers excellent bones and endless potential for those looking to make it their own. Don't miss this well-maintained gem in a fantastic neighbourhood-ready for your personal touch and next chapter.
| Room | Level | Size |
|---|---|---|
| Foyer | Main level | |
| Utility room | Basement | |
| Cold room | Basement | |
| Living room | Main level | |
| Dining room | Main level | |
| Kitchen | Main level | |
| Bathroom | Second level | |
| Primary Bedroom | Second level | |
| Bedroom 2 | Second level | |
| Bedroom 3 | Second level | |
| Recreational, Games room | Lower level | |
| Bathroom | Lower level |