
















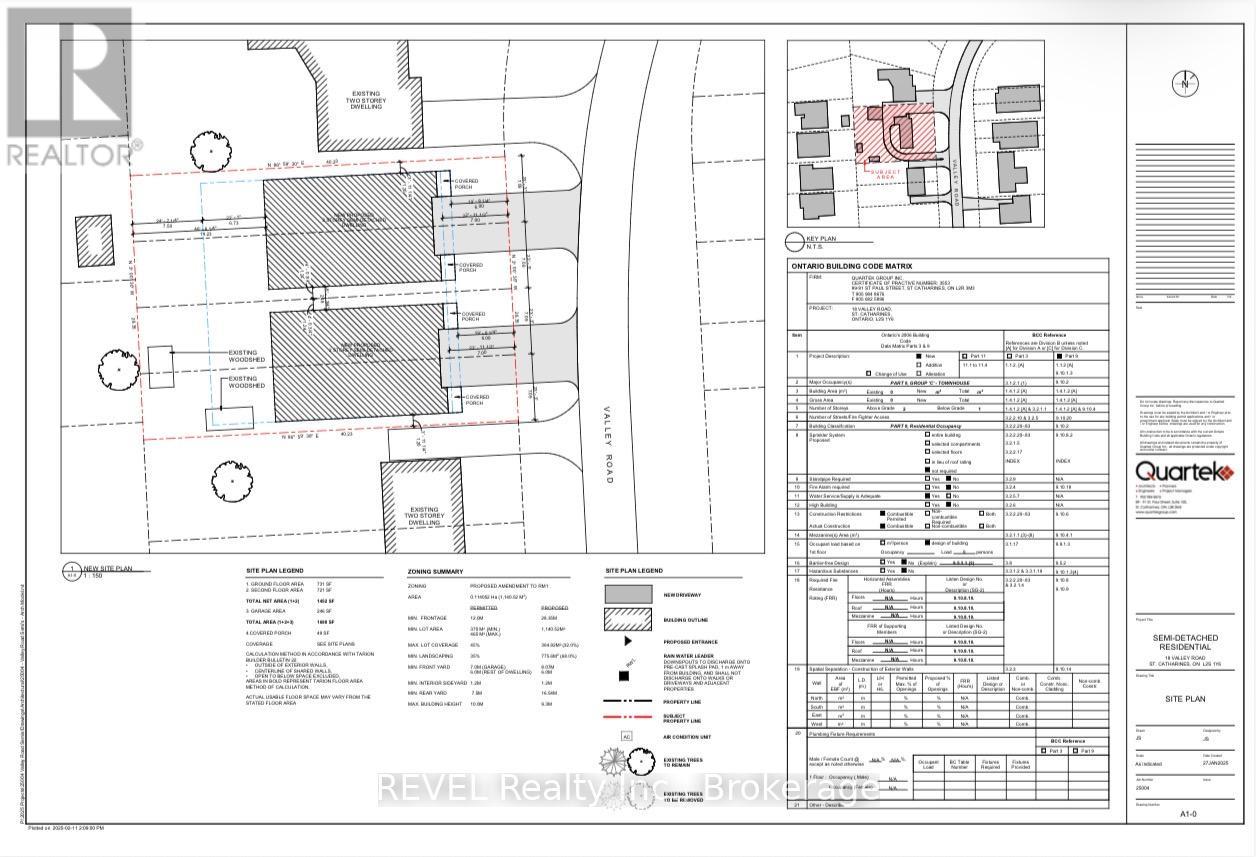
InFill Project! Valley Road is a hidden gem, one of the nicest streets in St. Catharines. Solid bungalow to be torn down at some point to allow for four new homes. This project has recently passed through the Committee of Adjustments, and has been approved for 2 semi's ( four homes ). The home is currently rented month to month and tenant is happy to stay or will vacate... Perfect tenant to keep until buyer ready to tear down and build. See plans in attachments. Buyer allowed to build 4 x 1400 square foot semi's with optional legal basement apartment. Significant information in the realtor attachment section.