



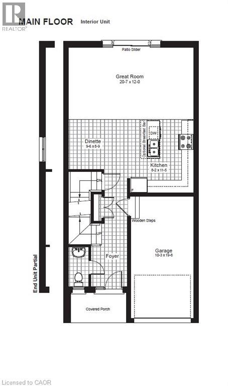
UNDER CONSTRUCTION - Move in Summer 2026. HST REBATE of over $50,000! This stunning 3-bedroom modern end unit townhouse built by Claysam Homes in the heart of Woodstock, Ontario, where contemporary design meets everyday comfort. From the moment you walk in, you'll be greeted by an inviting open-concept floor plan that is perfect for entertaining, relaxing, and enjoying life’s everyday moments. Flooded with natural light, the main level features a spacious living area that seamlessly flows into the dining space and a large kitchen complete with high-quality finishes, sleek cabinetry, and premium plumbing fixtures. Whether you're hosting family gatherings or enjoying a quiet night in, this layout delivers style and functionality. Upstairs, you’ll find three generous bedrooms, including a bright and airy primary retreat with ample closet space. The additional bedrooms are perfect for family, guests, or a home office—offering flexibility to suit your lifestyle. With modern exterior styling, a private outdoor space, and a location close to parks, schools, shopping, and major commuter routes, this home checks all the boxes for today’s buyer. Don’t miss your chance to own a beautifully crafted townhouse in one of Woodstock’s most desirable and growing communities!
| Room | Level | Size |
|---|---|---|
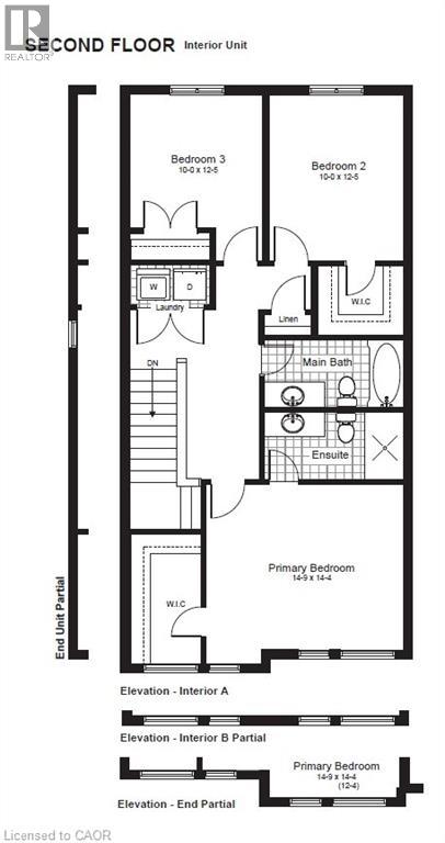
| Bedroom | Second level | 12'5'' x 10'0'' |
| Bedroom | Second level | 12'5'' x 10'0'' |
| Primary Bedroom | Second level | 14'4'' x 14'9'' |
| Laundry room | Second level | 3'0'' x 6'0'' |
| 4pc Bathroom | Second level | 5'0'' x 10'2'' |
| 3pc Bathroom | Second level | 5'0'' x 10'2'' |
| Kitchen | Main level | 11'5'' x 8'2'' |
| Dining room | Main level | 8'9'' x 9'6'' |
| Great room | Main level | 12'0'' x 20'7'' |
| 2pc Bathroom | Main level | 3'5'' x 6'6'' |