



















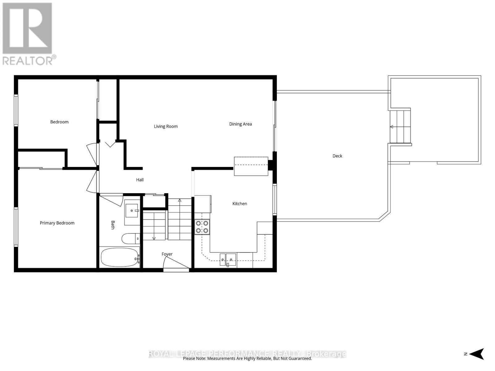
194 McElroy Drive is a semi-detached raised bungalow in Glencairn with 2+1 bedrooms, two bathrooms, and more usable square footage than most buyers expect at this price point. The main floor was recently painted throughout and feels clean and move-in ready. The living and dining area is genuinely spacious, open concept with a pass-through to the kitchen and a sliding door to the back deck. The kitchen has a full run of cabinets, plenty of counter and storage space, and a window overlooking the backyard. Two bedrooms on this level, one with laminate and one with original parquet. The 4-piece bathroom has been updated with a Bath Fitter surround and a newer vanity. The lower level is where this house earns its unassuming size. The rec room is large enough to be divided and framing in a fourth bedroom is a straightforward project. There's already a proper third bedroom down here with full-sized windows and vinyl flooring, a 2-piece bathroom. Out back, there is a very large no-maintenance multi-level deck and the yard is mostly fenced with a mix of vinyl and wood fencing. Private and functional.