






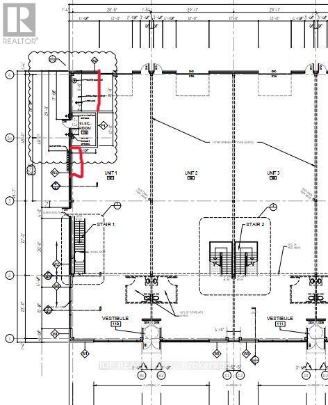
HIGH EXPOSURE CORNER LOCATION!! @ N/W Corner Of Scanlon Crt & Industrial Parkway, just North Of Wellington. New Multi Unit Industrial Building, ! Exceptional Location & Exposure. Steps to Aurora Go Station & Overflow Parking Lots. 24' Clear Ht, . One (1) 10'X 12' Drive-In Doors,. Minutes To Hwy 404, Smooth Pre-Cast Construction. LED Lighting In Warehouse. 5 Ton HVAC A/C Rooftop For Future Office. Total area includes approximately 750 sq.ft. mezzanine. Existing R/I for future bathrooms. Bright space ample windows.