



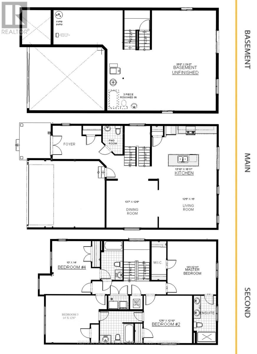
***FINISHED BASEMENT INCLUDED*** Perfect for Multi-Generational Families. Welcome to the Foxdale Model, offering 2,280 sq. ft. of thoughtful design and upscale features. The Foxdale impresses with 9 ceilings and engineered hardwood floors on the main level, quartz countertops throughout the kitchen and baths, and an elegant quartz backsplash. Featuring four bedrooms, two primary en-suites, and a Jack and Jill bathroom, it's a true generational home. Additional highlights include soft-close kitchen cabinets, upper laundry cabinetry, a tiled ensuite shower with glass enclosure, central air conditioning, and a walkout basement. Photos are from the model home which is also a Foxdale Model.
| Room | Level | Size |
|---|---|---|
| Living room | Main level | |
| Recreational, Games room | Basement | |
| Dining room | Main level | |
| Kitchen | Main level | |
| Primary Bedroom | Second level | |
| Primary Bedroom | Second level | |
| Bedroom 3 | Second level | |
| Bedroom 4 | Second level | |
| Laundry room | Second level | |
| Bedroom | Basement | |
| Bathroom | Basement |