




















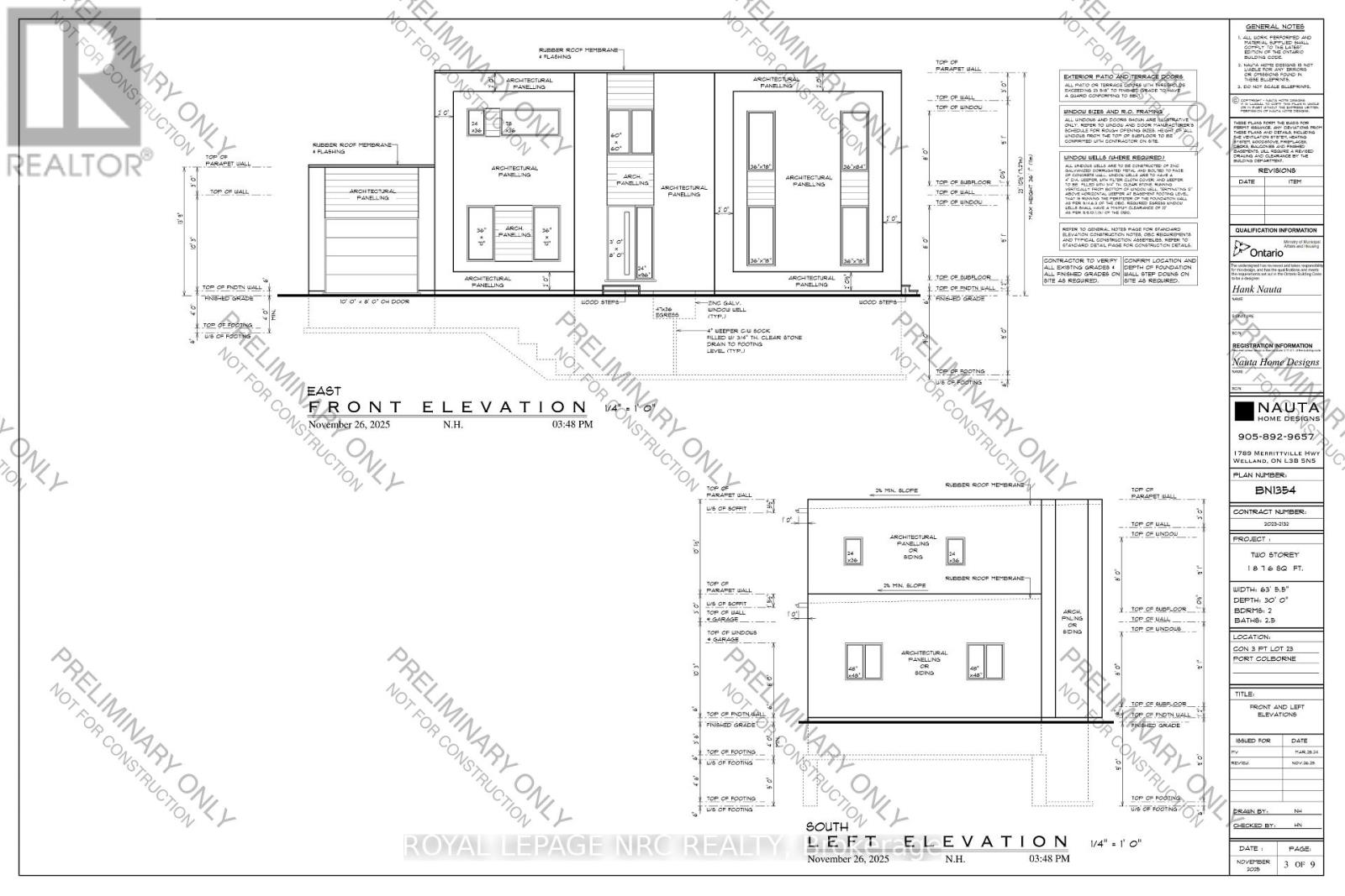
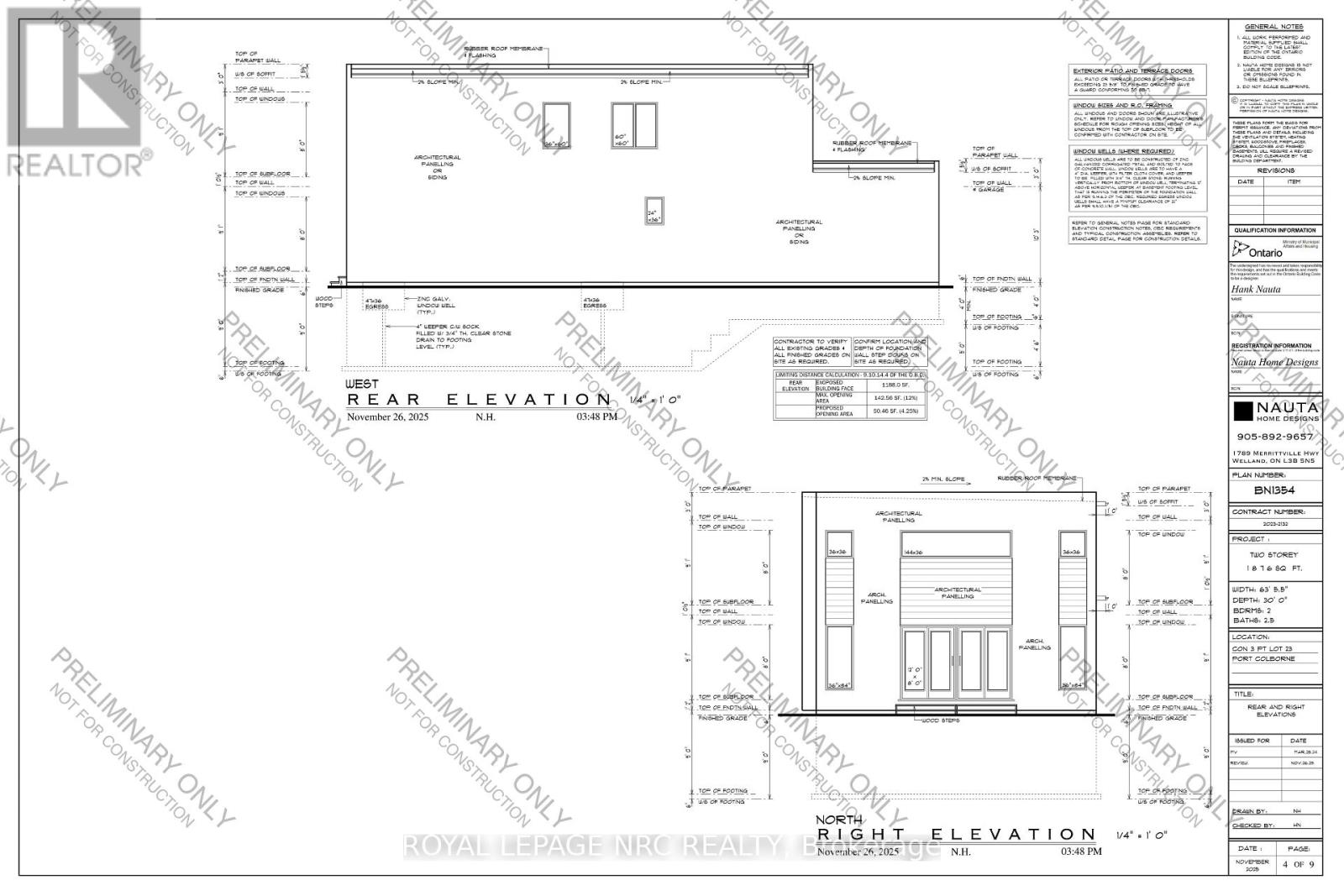
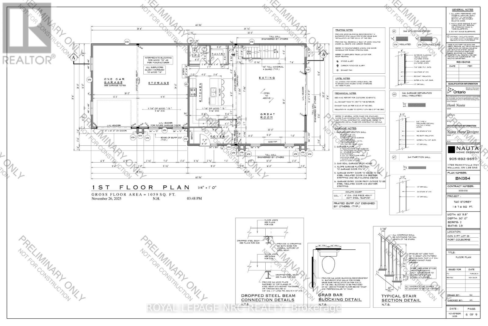
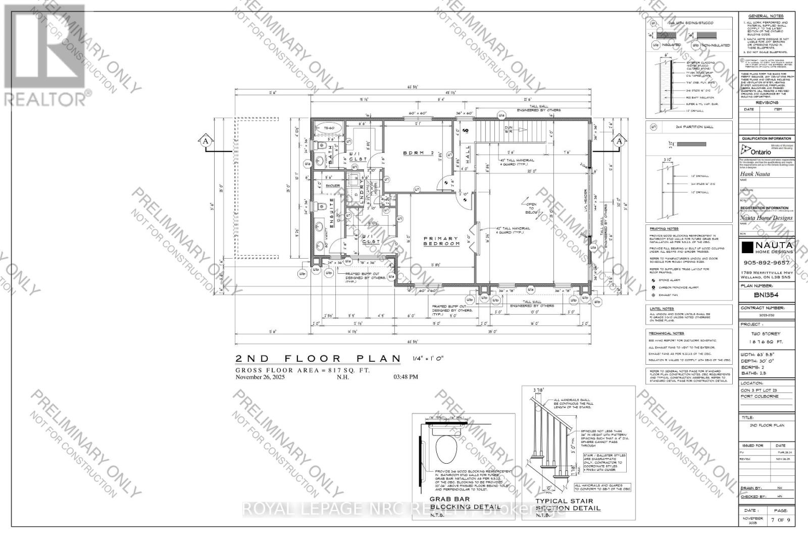
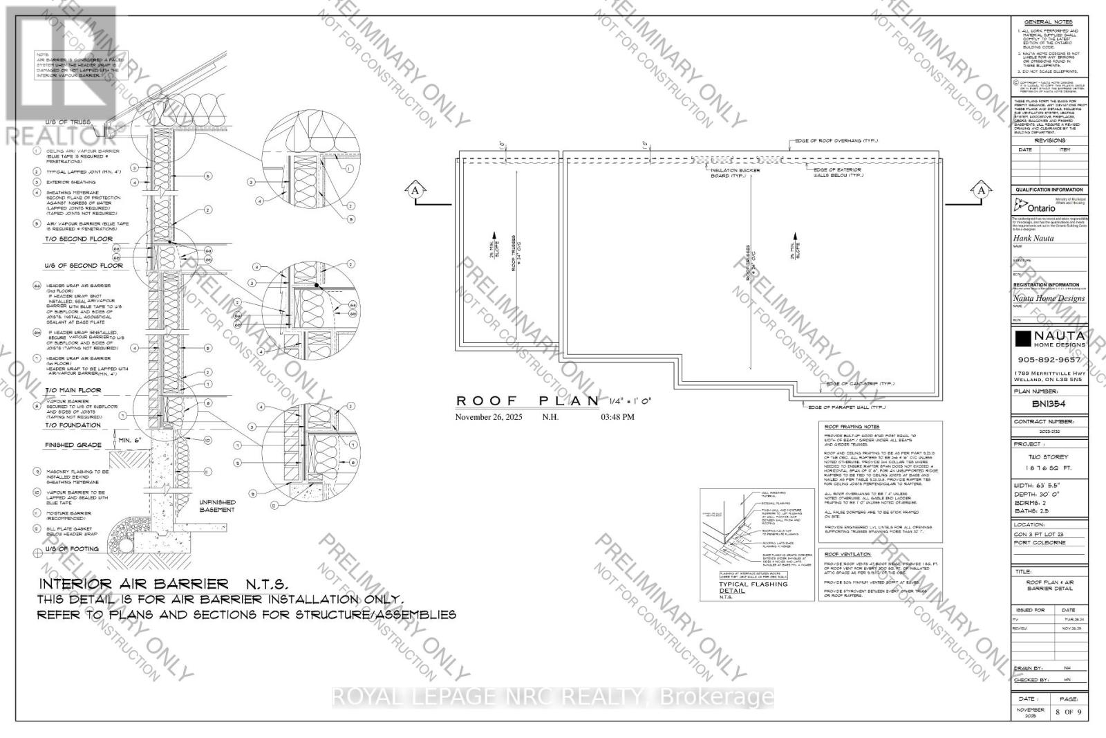
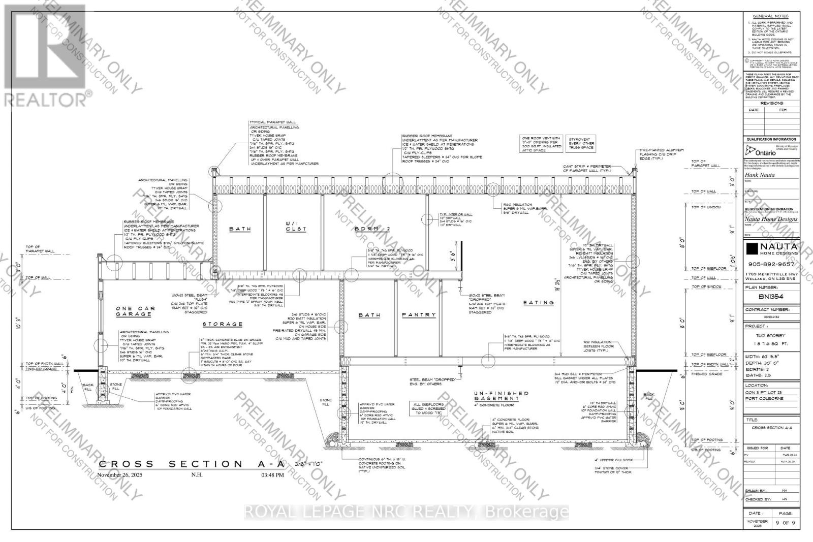
** TO BE BUILT** Build Your Dream Home in the Peaceful Hamlet of Bethel, Port Colborne OR Build with the Seller at $950,000. Discover the perfect opportunity to create your dream home in this tranquil rural community. This vacant lot, measuring 200' x 63', offers a serene setting surrounded by picturesque farmland, forest, and a horse farm-the ideal backdrop for country living at its finest. This property is ready to build, complete with an approved 2 storey or bungaloft open loft floor plan created by Nauta Home Designs with a single or double garage. The thoughtfully crafted 1,778 sq. ft. layout features two spacious bedrooms, both w/ensuite bathrooms, and a double car garage. The open-concept design highlights a bright and inviting main floor with a seamless flow between the kitchen, dining, and great room, 2 pc bath and soaring ceilings-perfect for both relaxation and entertaining. Enjoy the peace and privacy of rural life while being just a short drive to Port Colborne's amenities, beaches, and the Welland Canal. Whether you're looking to build your forever home or a tranquil getaway, this beautiful lot and ready-to-go home plan offer a rare and exciting opportunity in a truly picturesque country setting. Septic approval, minor variance, archeological study and drawings completed. .