$379,000
MLS# X12855630
1
Bathrooms卫浴
500-599
Sq Ft平方尺
1
Parking停车位

About This Property房源介绍

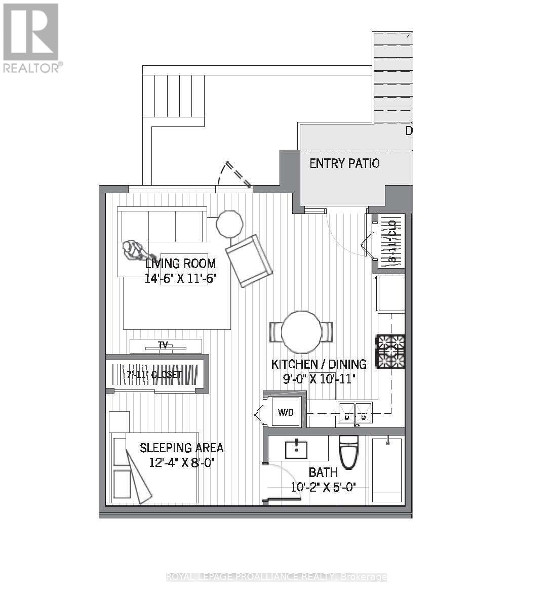
STUDIO24 townhouse condo units in Cobourg's sought after EAST VILLAGE are almost complete! Located a walk or bike ride distance to Lake Ontario's vibrant waterfront, beaches, downtown, shopping, parks and restaurants, an amazing location. Built by Stalwood Homes, these affordable studios are perfect for the first time home buyer, professional or down-sizer. Beautiful modern finishes enhanced with 9 ft ceilings. Open concept living room and stylish kitchen with Stainless Steel appliances. Convenient in suite laundry with a stackable Washer & Dryer. Luxury Vinyl Plank throughout with tiled washroom. Purchaser customizes colours and finishes and also enjoys a $5000 upgrade allowance! Fibre Internet available, HRV for healthy living, heat pump provides primary heating/cooling, owned hot water tank. Lawn Care And Snow Removal included in condo fees, along with one designated parking space and visitor parking is on-site. Easy access to the 401 corridor, convenient Cobourg VIA stop, and just a 45-minute drive to the Oshawa GO. Exterior photo is a virtual rendition, interior photos are virtually staged. LISTING PRICE REFLECTS EXPANDED HST NEW RESIDENTIAL REBATE FOR ELIGIBLE PURCHASERS.

Room Details房间详情

RoomLevelSize
KitchenMain level
Living roomMain level
DenMain level
BathroomMain level

Interested in this property?对这套房源感兴趣?

Inquiry for:咨询房源: 202 - 515 (BLK 59) JOSEPH GALE STREET, Cobourg · MLS# X12855630 · $379,000
Or call: 647-624-9279或拨打: 647-624-9279