



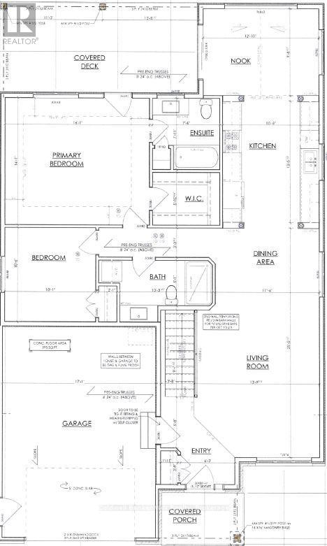
Jema Homes is proud to introduce this new 2 bedroom, 2 bath home situated on a quiet cul-de-sac. Choices of colours and flooring are available from the builder's samples. You will be impressed by the quality of finish provided by this builder. The covered rear deck overlooks a quiet pasture setting. It is located close to shopping amenities. Palmerston is a full-service community with its own hospital and ancillary medical services. It has a public, French immersion and high school. There are ample parks and recreation facilities to provide an enjoyable lifestyle.
| Room | Level | Size |
|---|---|---|
| Foyer | Main level | |
| Living room | Main level | |
| Dining room | Main level | |
| Kitchen | Main level | |
| Other | Main level | |
| Primary Bedroom | Main level | |
| Bathroom | Main level | |
| Bathroom | Main level | |
| Bedroom 2 | Main level |