








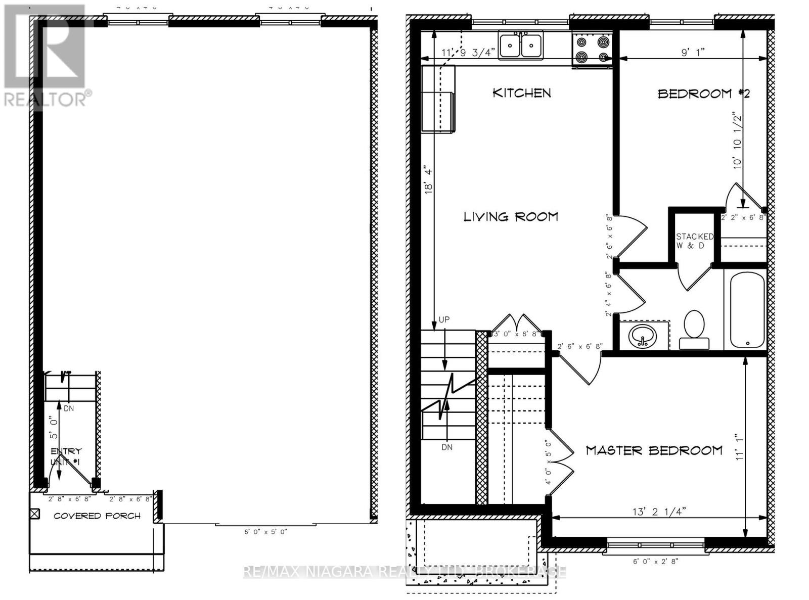
Discover this beautifully renovated 2-bedroom basement suite, designed with both style and comfort in mind. Unlike typical lower-level units, this home features ample natural lighting that creates a bright, airy atmosphere throughout the open-concept living space.Highlights of This Home:Fully Renovated: Enjoy a fresh, modern aesthetic with high-quality finishes and contemporary flooring.Spacious Layout: Two well-proportioned bedrooms offering plenty of closet space.Professional Management: Situated in a meticulously maintained building, ensuring a clean and quiet environment for all residents.Convenience Included: Comes with private parking and is located in a highly sought-after, friendly neighborhood.Whether you are a professional looking for a quiet retreat or a small family seeking a move-in-ready home, this unit offers the perfect blend of quality and value.