











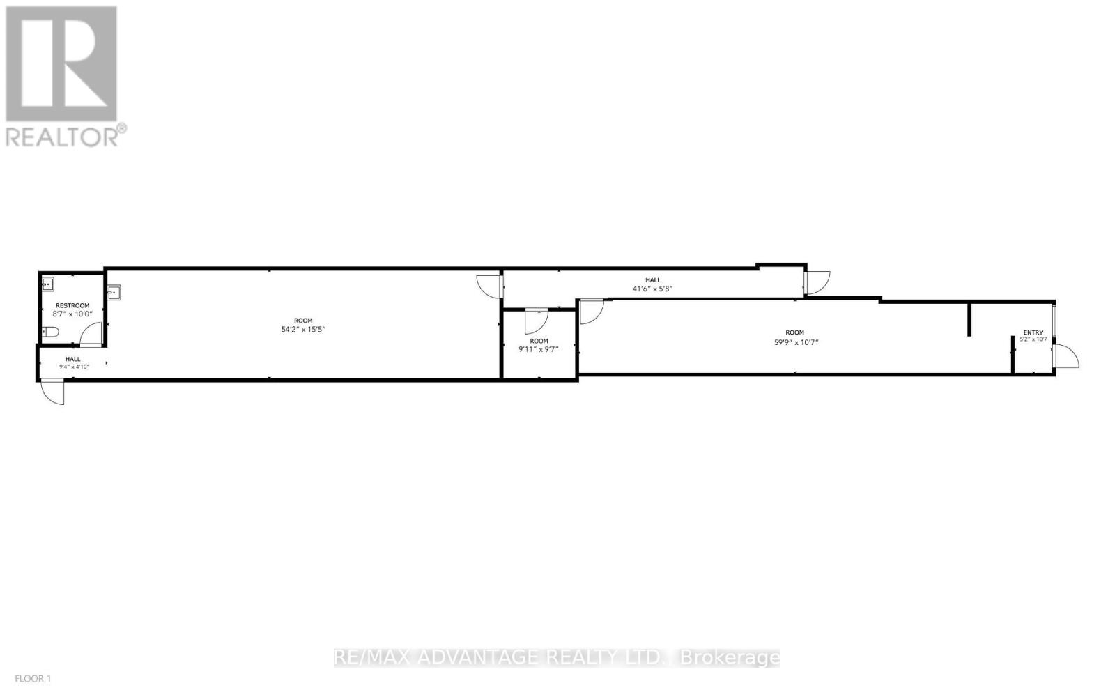
2000sf main floor retail/office/studio/spa/gym in a completely renovated 3 storey with historically restored frontage located in the heart of London, on Dundas, east of Clarence, west of Wellington. Excellent visibility, making it an ideal property for business seeking high traffic area. DA 1 Zoning offers a wide range of uses including, but not limited to; Studios, retail, restaurants, bake shops, clinics, commercial recreation, medical/dental, taverns and much more. Competitive rate at $12/sf net and Additional rents at $7.50/sf plus HST plus utilities.