




















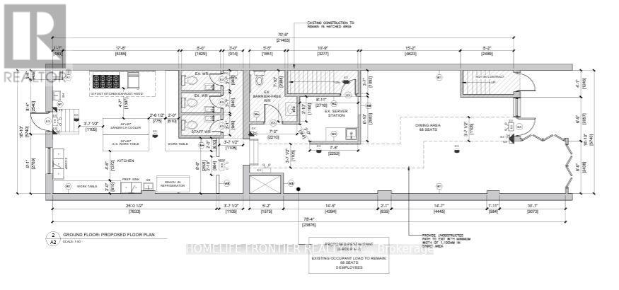
Positioned at the prime intersection of King St and Erb St - widely recognized as one of the most desirable commercial corridors in Waterloo - this is a truly turnkey restaurant opportunity ready for immediate operation. The space is fully equipped with brand-new commercial equipment, including a 10-foot hood, two deep fryers, 8-burner stove range, commercial coolers and freezers, 3-compartment sink, stainless steel prep tables, and a professionally built above-ground grease trap. A recently approved LLBO license allows for up to 72 seats, including a patio, offering excellent revenue potential. The dining area is thoughtfully designed with a modern and refined aesthetic, and the business is already operating successfully. Currently home to a well-known and profitable franchise brand, the buyer has the flexibility to either take over the existing franchise and continue its proven model or introduce their own original concept in this high-demand location. The lease is highly attractive, with reasonable rent secured until November 30, 2030, plus a 5-year renewal option - providing long-term stability in one of Waterloo's busiest and most sought-after areas. After touring other available restaurant listings in Waterloo, the value of this fully prepared and income-generating opportunity becomes clear. A rare chance to step into a thriving location with infrastructure, licensing, and momentum already in place - though it may not remain available for long.