














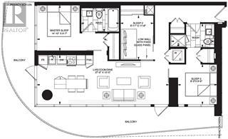
The Prestige Massey Tower. 3 Beds 2 Baths , Spacious & Sun-Filled SW Corner Unit Comes With Massive Wrap Around Balcony & Unbeatable Views Of The City, Cn Tower & The Lake! Fresh Premium Painting , New Back Splash, New Draperies. Building Is Equipped W/Exercise Room, Party Room, Piano Bar, Sauna, Very First Smart Auto Parking System In Toronto. Be In The Centre Of Everything! Steps From Subway, Eaton Centre, University of Toronto, Toronto Metropolitan University, The Path, Financial District.
| Room | Level | Size |
|---|---|---|
| Living room | Ground level | |
| Dining room | Ground level | |
| Kitchen | Ground level | |
| Primary Bedroom | Ground level | |
| Bedroom 2 | Ground level | |
| Bedroom 3 | Ground level |