
















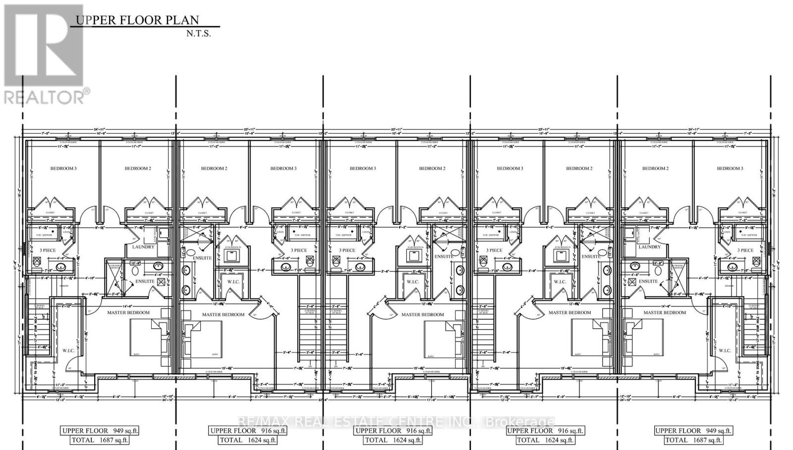
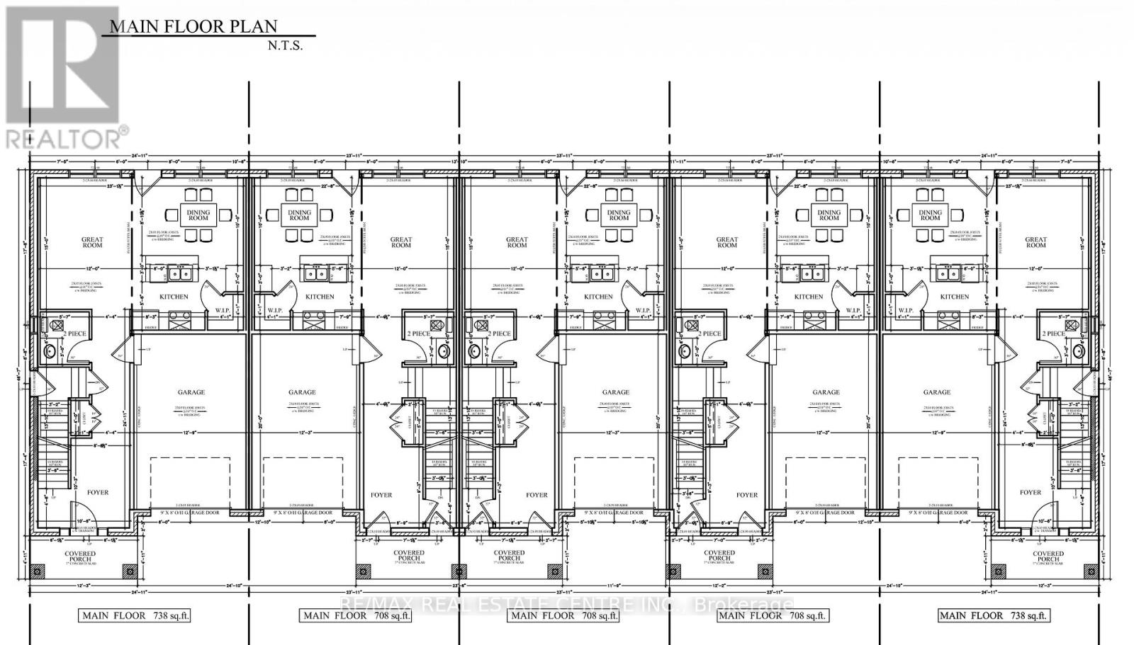
**A RARE FIND PRE-CONSTRUCTION TOWNHOME with SEPARATE ENTRANCE for BASEMENT**The Doulyne Townhomes at Victoria On The River, a prestigious community offering meticulously designed 3-bedroom, 2.5-bath home 1,624 square feet. These homes blend modern functionality with high-end finishes, featuring second-floor laundry, a single garage, and 9-foot ceilings on the main floor. California-style ceilings enhance the living spaces, while luxury vinyl plank flooring flows throughout, complemented by premium tiles in the bathrooms. The exterior showcases quality stone, brick, stucco, and siding as applicable, with an insulated garage door and interlock driveway for added convenience. Inside, enjoy granite or quartz countertops, under-mount sinks, and up to 25 pot lights, creating a sophisticated ambiance. The bathrooms feature acrylic tubs and/or showers with acrylic walls, and an unfinished basement offers excellent potential for future expansion of your living experience. Located in London South, this neighbourhood benefits from serene river side living with easy access to essential amenities, including schools, shopping, gyms, restaurants, and quick access to Highway 401, 15 minute drive to Western University, and 10 minute drive to Fanshawe College. Don't miss your chance to make this exceptional community your home. SEE FLOOR PLAN IN ATTACHMENTS**
| Room | Level | Size |
|---|---|---|
| Foyer | Main level | |
| Bedroom 3 | Second level | |
| Kitchen | Main level | |
| Dining room | Main level | |
| Great room | Main level | |
| Primary Bedroom | Second level | |
| Bathroom | Second level | |
| Laundry room | Second level | |
| Bathroom | Second level | |
| Bedroom 2 | Second level |