



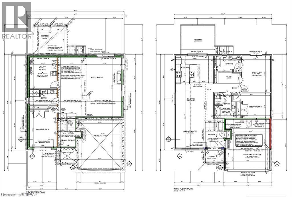
Local and trusted custom builder Samarlin Homes is proud to build their incredibly popular detached raised bungalow with the quality and care you deserve.The main floor boasts 2 bedrooms and 2 bathrooms and main floor laundry with an open concept floor plan great for families or entertaining alike. Complete with 9' ceilings, laminate floors, a large kitchen with lots of storage and quartz countertops and an ensuite in the primary bedroom. The backyard will have a 10x12 wood deck off the kitchen. Located in the serene Cedar Park development in Waterford you are just steps away from trails leading to the Waterford ponds, a quick drive to grocery stores and local restaurants, easy access to HWY 24 and a quick drive to Simcoe and Port Dover.Room measurements as per builders plans. Square footage is as per builders plans and subject to change. *Finished basement is optional at an additional cost - Inquire for more info*.
| Room | Level | Size |
|---|---|---|
| Laundry room | Main level | |
| 4pc Bathroom | Main level | |
| Bedroom | Main level | 11'4'' x 10'1'' |
| Full bathroom | Main level | |
| Primary Bedroom | Main level | 11'6'' x 14'9'' |
| Living room | Main level | 11'6'' x 13'0'' |
| Kitchen | Main level | 15'5'' x 11'6'' |
| Dining room | Main level | 11'6'' x 13'0'' |