



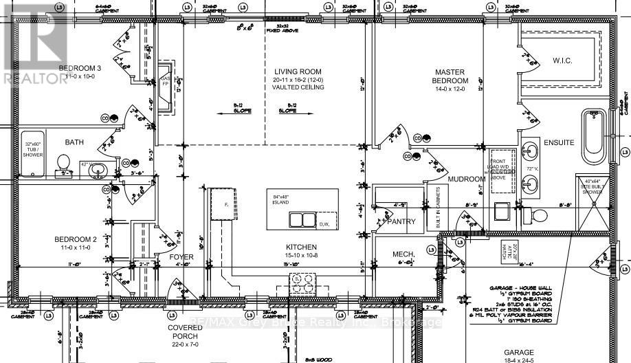
Newly built, 3 bedroom, 2 full bath, bungalow home available for short term or long term lease. Featuring open concept living, kitchen and dining areas, along with primary bedroom with walk-in closet and private 5 piece ensuite. Covered rear deck off the living room leads to a nicely treed rear yard. This lease is ideal for someone building a new home, relocating to the area, or on short or long term job contract. Utilites are extra. Ready for a May 1, 2026 occupancy.