



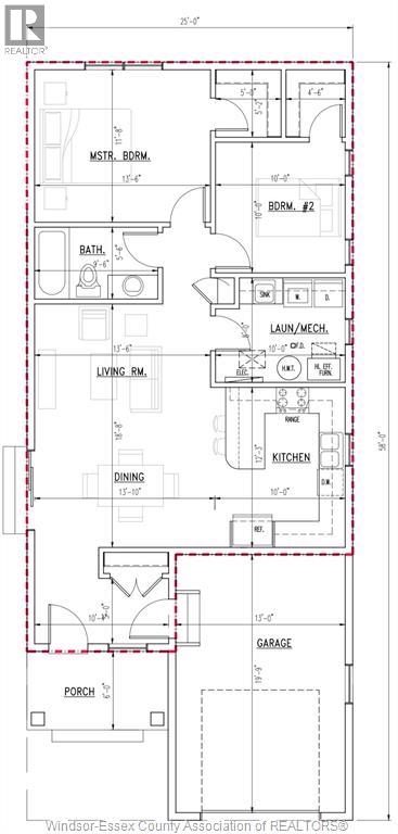
Be the First to Call This Home! This brand-new bungalow is the perfect opportunity to become a homeowner. Thoughtfully designed, it offers 2 spacious bedrooms—each with its own walk-in closet, a bright full bath, and a functional layout that combines comfort and style. The kitchen with eating area flows into the inviting living room, creating the ideal space for both everyday living and entertaining. With a main-floor laundry room and an attached single-car garage for added storage and parking, this home offers everyday convenience. Built with quality craftsmanship and backed by a Tarion New Home Warranty, this home ensures peace of mind while you enjoy the benefits of ownership. Don’t miss your chance to own a brand-new home tailored for easy, comfortable living!
| Room | Level | Size |
|---|---|---|
| 4pc Bathroom | Main level | |
| Utility room | Main level | |
| Laundry room | Main level | |
| Bedroom | Main level | |
| Bedroom | Main level | |
| Living room | Main level | |
| Eating area | Main level | |
| Kitchen | Main level |