









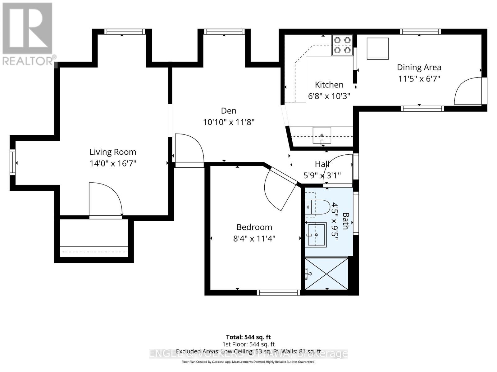
Charming turn-of-the-century 1-bedroom plus den apartment in a prime Centretown location, close to Bank St., shops, and restaurants. This third-floor unit features hardwood floors throughout and plenty of natural light with updated kitchen and bath. Extra storage is available in the basement. Enjoy a communal large backyard perfect for entertaining, plus one parking space. Heating and water is included; tenant pays hydro. Mature professionals and very responsive landlord. Available May 1st. Photos are from before the current tenant.