


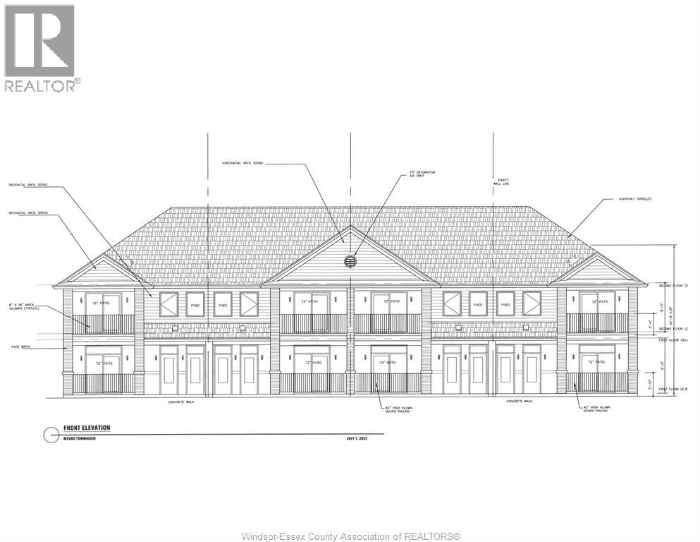
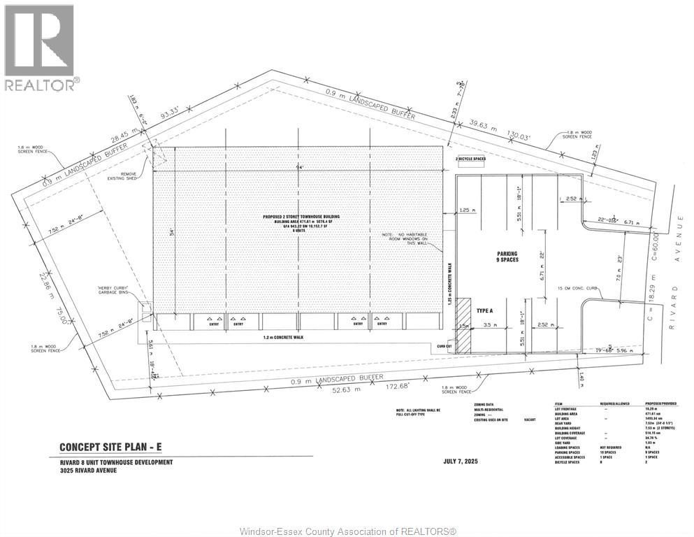
City Approved for 8 Residential Units on this Prime vacant land ... what an exceptional investment opportunity. Ideal location for developers seeking strong rental potential and future appreciation. Finished construction drawings have already been submitted to the city for review(permits, development charges, etc to be paid by the buyer). Perfect chance to build modern multi-unit housing in an established neighborhood and a stones throw to WJ Langlois Catholic grade school, Fontainebleau library & Ambassador Community Church.