




















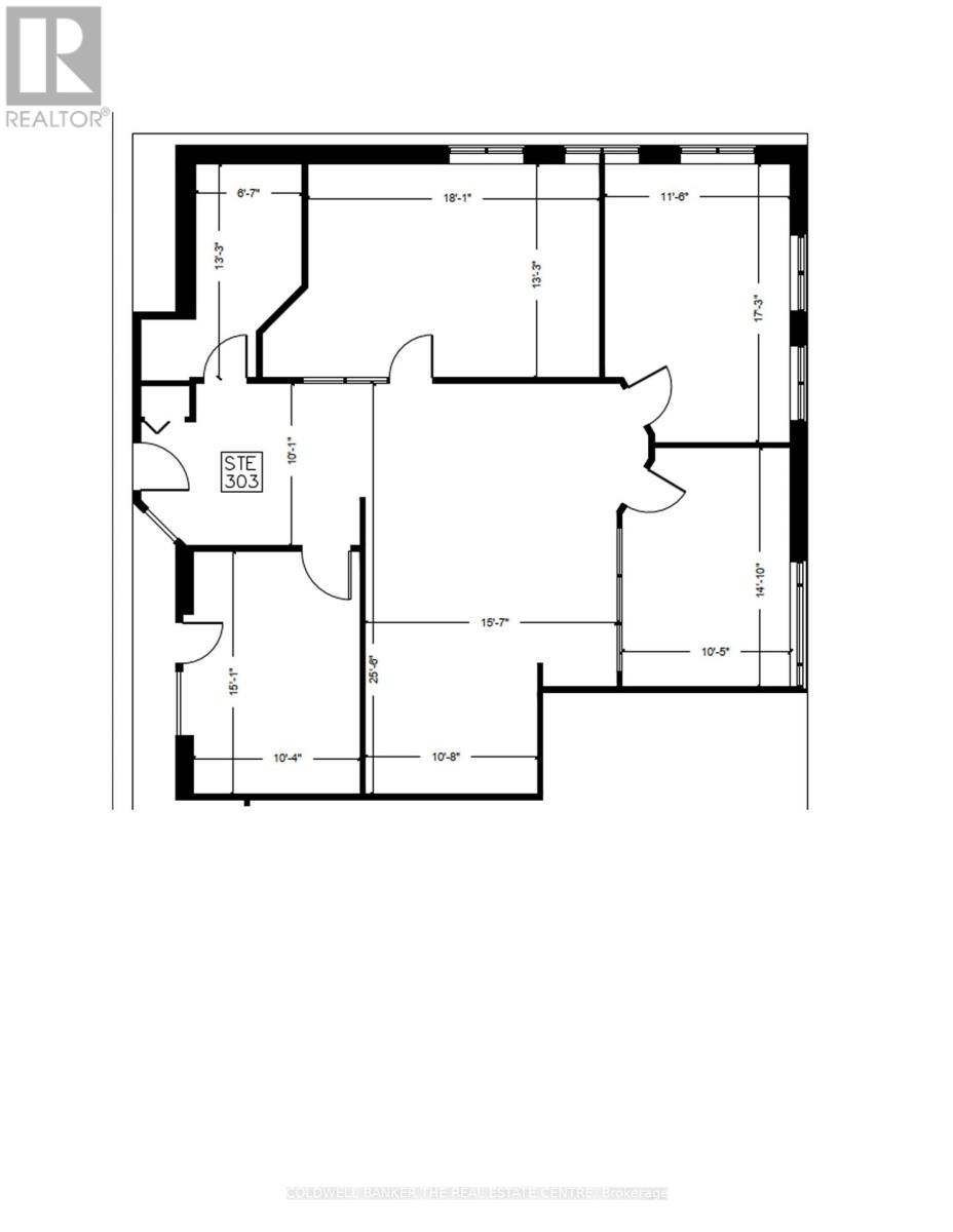
Discover this well-appointed office suite in a professionally managed building at the prime intersection of Davis Drive & Main Street. Offering 1,701 sq.ft. of rentable area, unit 303 is ideal for a range of professional uses. The layout includes three private offices, a spacious boardroom, a kitchenette with a storage area, a large open-concept bullpen with ample room for workstations, and a welcoming reception area to greet clients. Located on the third floor, this unit benefits from shared men's and women's washrooms conveniently located on the same level. The building boasts excellent access to public transit, including the GO Train, and major highways, making commuting seamless for both clients and staff. Additional rent (TMO): Includes taxes, maintenance, operating costs, and tenant utilities (heat & hydro). Take advantage of this opportunity to position your business in one of Newmarket's most accessible and professional office settings. Available immediately.