


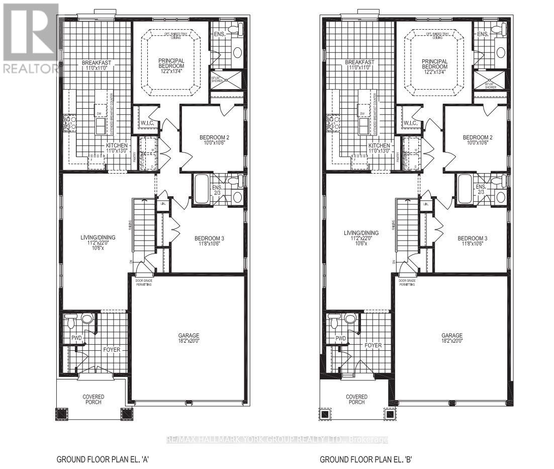
Take advantage of new rebates with revised pricing! The appeal of Orillia living truly comes to life in communities like Westridge Trailside. Set on a premium 40 ft x 131 ft lot, 3139 Orion Blvd presents the future Berkley model by respected local builder Dreamland Homes, an opportunity to own brand-new construction in one of the city's fastest growing neighbourhoods. Thoughtfully designed with both style and function in mind, this home offers over $20,000 in carefully selected upgrades, including 5" wide hardwood flooring throughout the main level, quartz kitchen countertops with a stainless steel undermount sink, a stained oak staircase, and smooth ceilings throughout. Central air conditioning and garage door openers add everyday comfort and convenience, creating a space that is truly move-in ready from day one. Perfectly positioned for both lifestyle and accessibility, you're just minutes from Costco, Lakehead University, Walter Henry Park, and a wide range of shopping and dining options. With quick connections to Highways 11 and 12, commuting to Toronto or escaping north to Muskoka is effortless, while Orillia itself continues to grow as a vibrant, well-connected city that still holds onto its small-town charm. Whether you're looking to settle into a modern, family-friendly community or invest in a growing area, this is a home that offers both immediate comfort and long-term value. With additional models and lots available, there's also the flexibility to build a home that truly fits your vision.
| Room | Level | Size |
|---|---|---|
| Living room | Main level | |
| Kitchen | Main level | |
| Eating area | Main level | |
| Bedroom | Main level | |
| Bedroom 2 | Main level | |
| Bedroom 3 | Main level |