










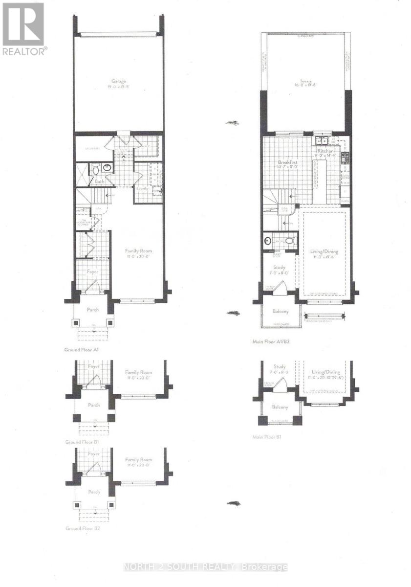
R-A-R-E-L-Y Offered 2,106 sq.ft. Luxurious Modern Freehold Townhome W/D-O-U-B-L-E Car Garage In Patterson, Vaughan. Bright, spacious home with 10 ft ceiling on the main floor and 9 ft on the ground and upper levels, so it feels open and airy throughout. Upgraded kitchen on the main floor with a bright breakfast area that walks out to a H-U-G-E PRIVATE TERACE - perfect for entertaining or quiet mornings. The open-concept living, dining, and office space on the same level also offers a SECOND outdoor option with a BALCONY - a rare and elegant bonus. Upstairs, the primary bedroom has its own private BALCONY, giving you that extra comfort and privacy you don't usually get. Prime Location, Lebovic Campus, Public Transit, Proximity To 407, Schools, Parks, Shopping.
| Room | Level | Size |
|---|---|---|
| Laundry room | Ground level | |
| Kitchen | Main level | |
| Eating area | Main level | |
| Living room | Main level | |
| Dining room | Main level | |
| Office | Main level | |
| Primary Bedroom | Second level | |
| Bedroom 2 | Second level | |
| Bedroom 3 | Second level | |
| Bedroom 4 | Ground level |