













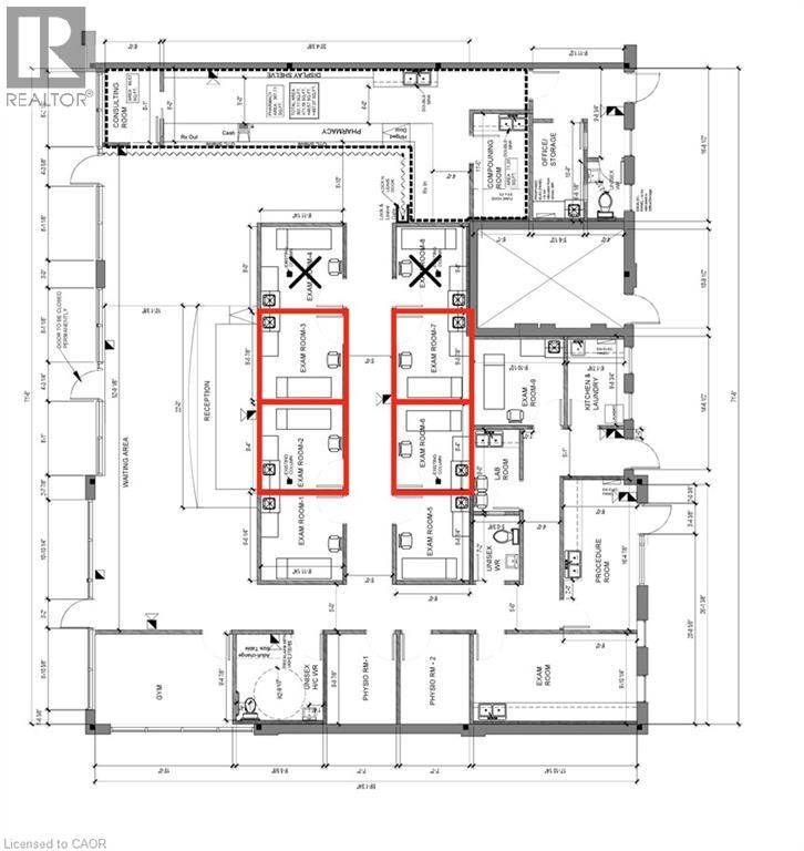
Exceptional sublease opportunity for physicians within a busy, well-established pharmacy setting. Fully built-out private exam rooms available, ideal for family doctors, walk-in practitioners, or specialists seeking a turnkey medical space. Benefit from consistent patient traffic, on-site pharmacy support, and a highly synergistic environment that enhances patient care and convenience. This setup allows for seamless collaboration, improved patient compliance, and strong referral potential. Flexible lease terms offered. A rare opportunity for physicians to establish or expand their practice in a professional, high-exposure healthcare setting without the overhead of a full clinic build-out.