






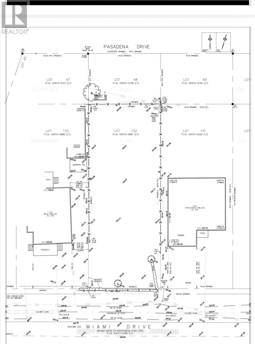
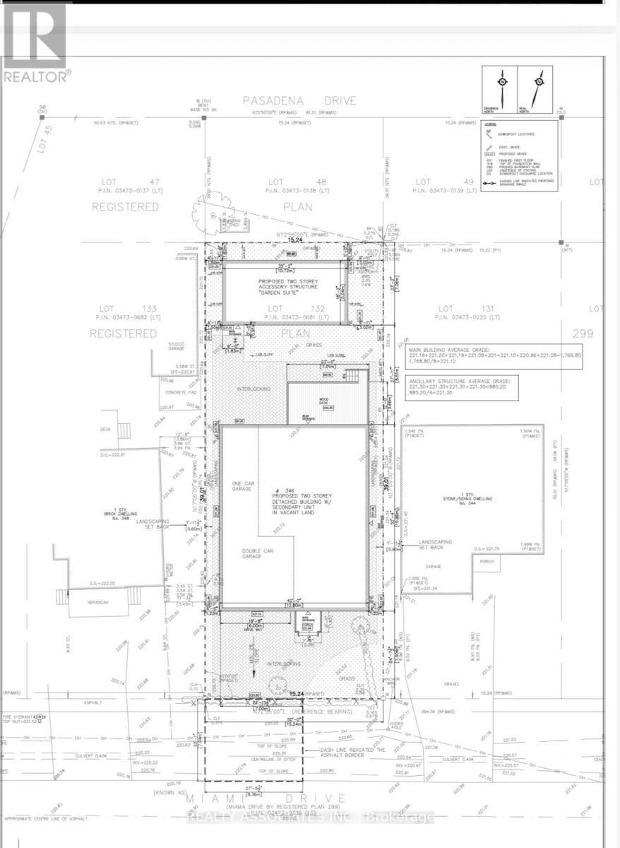
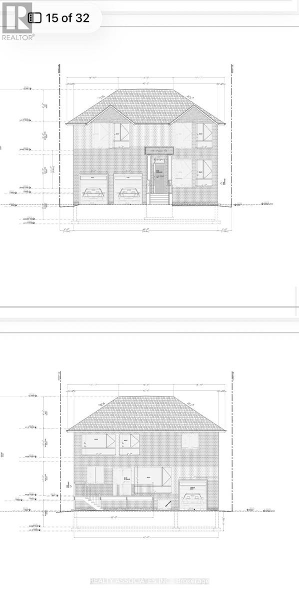
Attention Builders & Investors!Rare opportunity to own a fabulous, mature 50 x 128 ft lot in the highly sought-after south end of Keswick-just steps to Lake Simcoe! Enjoy access to the lake and a private beach association, offering endless recreational activities including swimming, water sports, and fishing.This property comes ready for your vision, with site Alteration permits already completed with the city and designs available for both the main house and a garden suite-a fantastic opportunity for redevelopment or investment.The lot is fully fenced, providing privacy and security, and a new survey (2025) has already been completed for your convenience.Don't miss this exceptional chance to build in a prime lakeside location!