






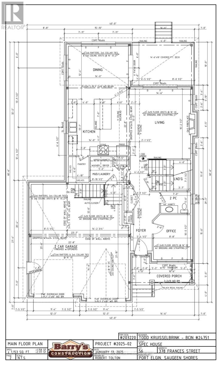
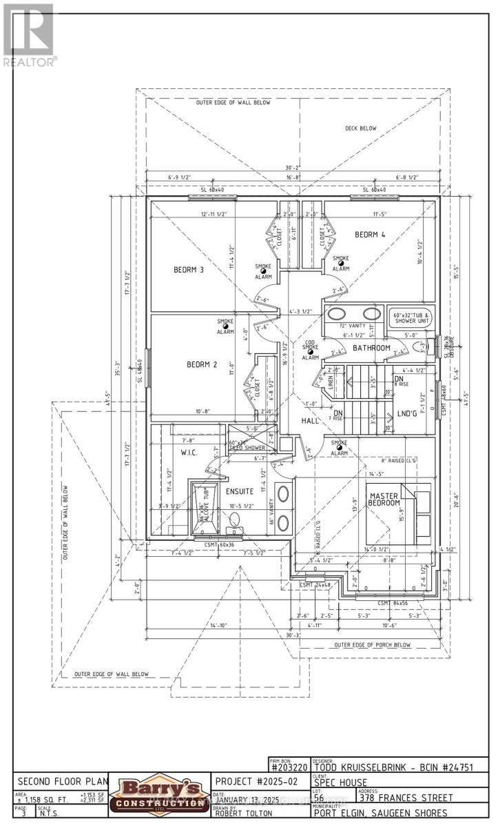
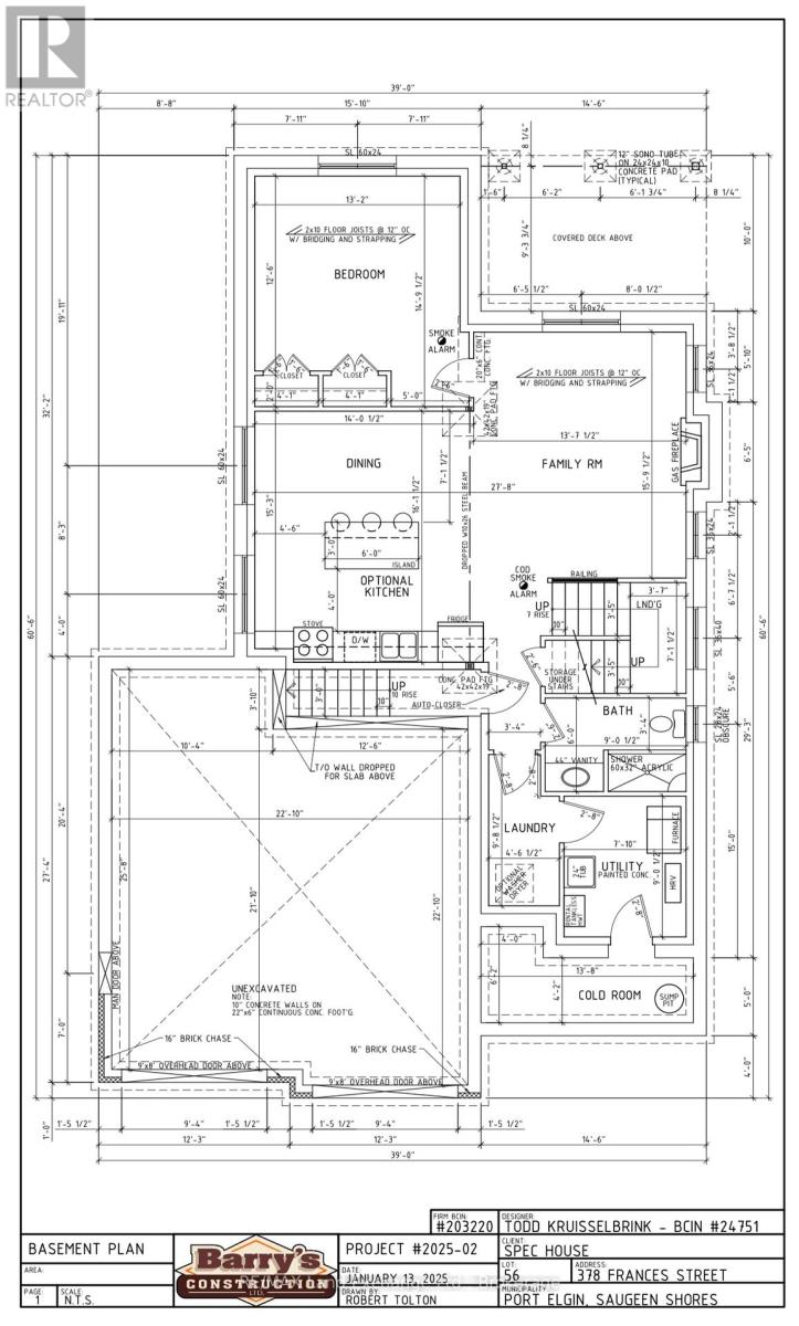
This 2311 sqft 4 bedroom is currently under construction at 378 Frances Street in Port Elgin. The main floor features a den right inside the front door for those working from home; a large kitchen with 7ft island and walk in pantry measuring 6 x 4'10, covered 14'6 x 10 deck providing shade from the sunny southern exposure, living room with gas fireplace, powder room and dining area. Upstairs there are 4 spacious bedrooms a 5pc main bath with a separate shower / toilet room, luxury primary with a 5pc ensuite including tiled shower, soaker tub & 2 sinks and a walk-in closet. The basement is unfinished but finishing options are available. For an additional $40,000 it will be finished to include a family room, 1 or 2 bedrooms (your choice) and full bath. Option 2 is a legal separate secondary suite with separate kitchen and entrance for $85,000. HST is included in the list price provided the Buyer qualifies for the rebate and assigns it to the Builder on closing. Prices subject to change without notice.
| Room | Level | Size |
|---|---|---|
| Foyer | Main level | |
| Kitchen | Main level | |
| Living room | Main level | |
| Dining room | Main level | |
| Laundry room | Main level | |
| Den | Main level | |
| Pantry | Main level | |
| Primary Bedroom | Second level | |
| Bedroom 2 | Second level | |
| Bedroom 3 | Second level | |
| Bedroom 4 | Second level |