



















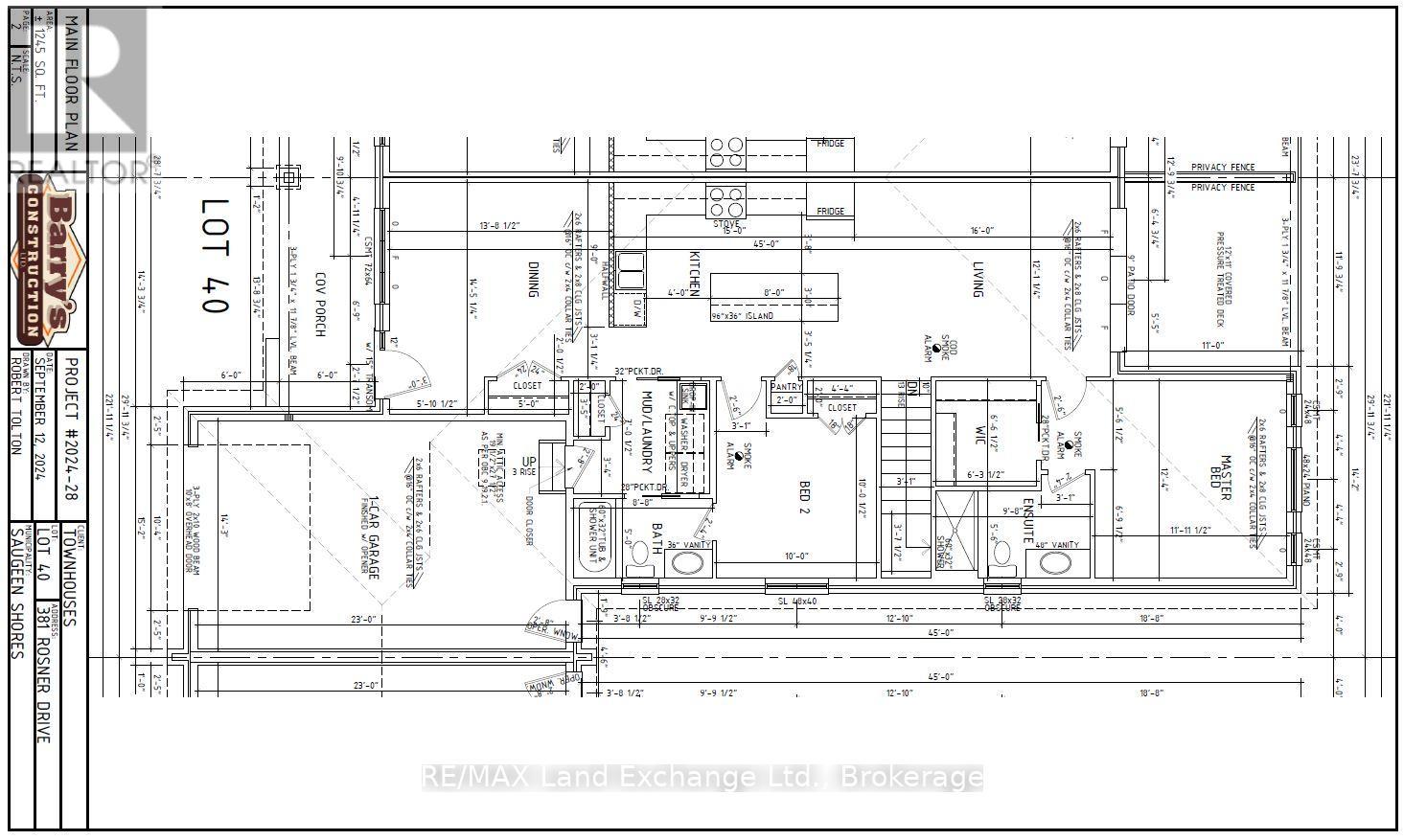
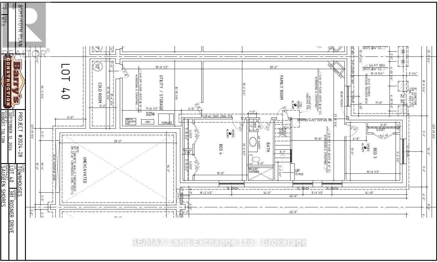
This freehold townhome is nearing completion! This 2 bedroom 2 bath unit is 1245 sqft on the main floor with a full unfinished basement. The finished basement feautre a family room, 2 more bedrooms and a full bath. Standard main floor finishes included hardwood and ceramic, solid wood staircase to the basement, 9ft ceilings, and Quartz kitchen counters. Exterior includes a sodded yard, concrete drive and covered back deck measuring 12 x11. Heating is gas forced air with central air. HST is included in the list price provided the Buyer qualifies for the rebate and assigns it to the Builder on closing. Prices subject to change without notice.
| Room | Level | Size |
|---|---|---|
| Dining room | Main level | |
| Kitchen | Main level | |
| Living room | Main level | |
| Primary Bedroom | Main level | |
| Bedroom 2 | Main level | |
| Laundry room | Main level | |
| Bedroom 3 | Basement | |
| Bedroom 4 | Basement | |
| Family room | Basement |