










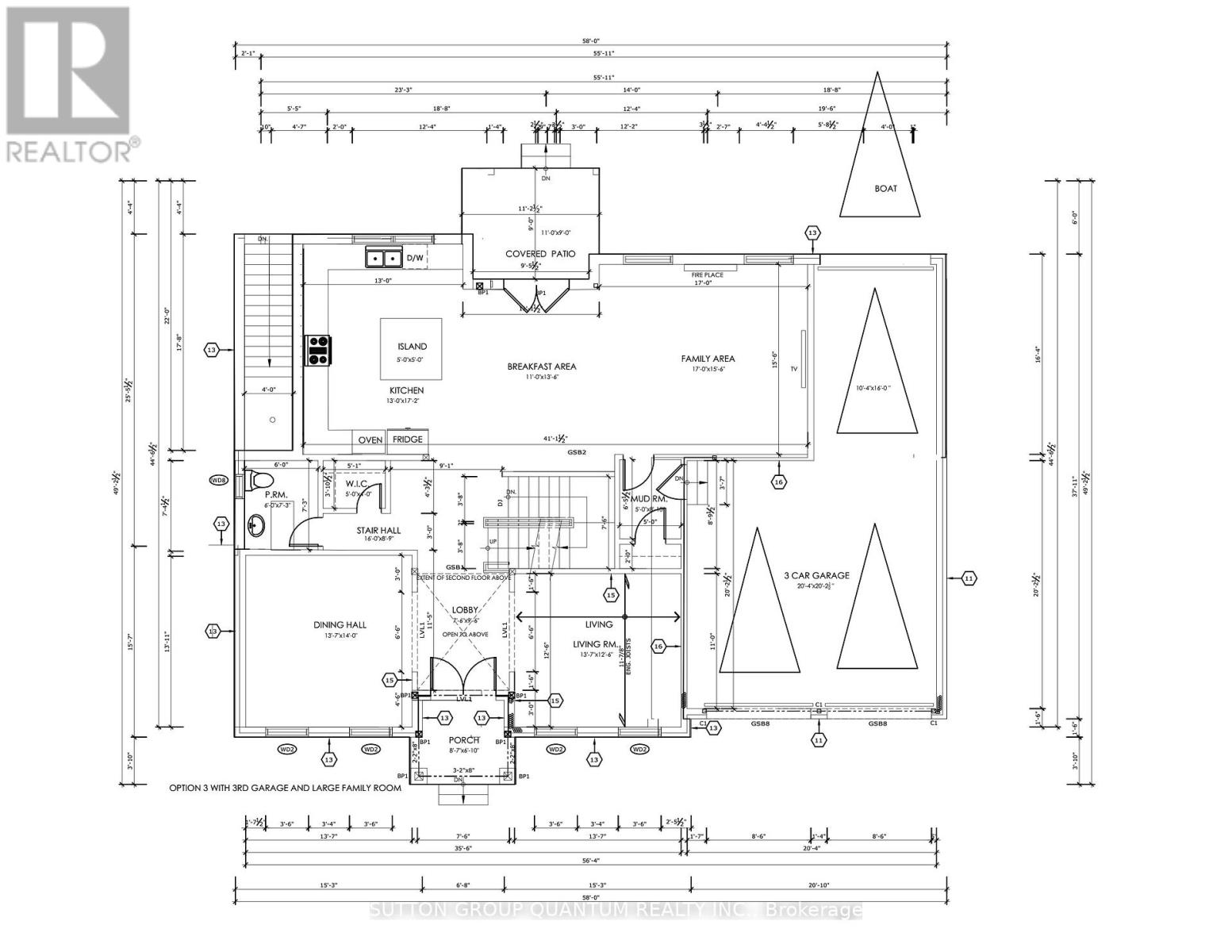
Welcome to 398 Tennyson Drive in Oakville, an exceptional opportunity to secure a premium property in one of the town's most prestigious and established neighbourhoods, surrounded by impressive multi-million-dollar custom homes. Set on a generous 67-foot-wide lot, this property offers outstanding potential for homeowners, builders, or investors looking to design and build a remarkable custom residence in a highly sought-after location.The property is permit-ready, with architectural drawings available for a stunning custom home offering approximately 3,440 sq.ft. above grade and about 5,075 sq.ft. of total living space including the basement. This provides a valuable advantage for buyers who want to move forward with redevelopment without the lengthy planning process typically required.Currently on the lot is an older brick bungalow of approximately 1,500 sq.ft., featuring three bedrooms, two bathrooms, a bright living room with a bay window, and a kitchen with walk-out access to the backyard. The basement is unfinished, offering additional flexibility. The home can be lived in, rented, or held while planning your new build.Another key advantage is the ability to begin construction quickly. Once the buyer applies for utility disconnection, building can typically commence within about 15 days, allowing developers or end users to move forward with minimal delay.Ideally located near top-rated schools, parks, scenic trails, shopping, and major highways, the property is also just minutes from Bronte Heritage Waterfront Park and Coronation Park, offering easy access to Oakville's beautiful waterfront lifestyle.Architectural drawings and floor plans are available for serious inquiries, and the seller's building permit remains valid for two years-making this an outstanding opportunity to build a luxury home in a prime Oakville neighbourhood.
| Room | Level | Size |
|---|---|---|
| Kitchen | Main level | |
| Living room | Main level | |
| Primary Bedroom | Main level | |
| Bedroom 2 | Main level | |
| Bedroom 3 | Main level | |
| Recreational, Games room | Lower level | |
| Bedroom 4 | Lower level |