














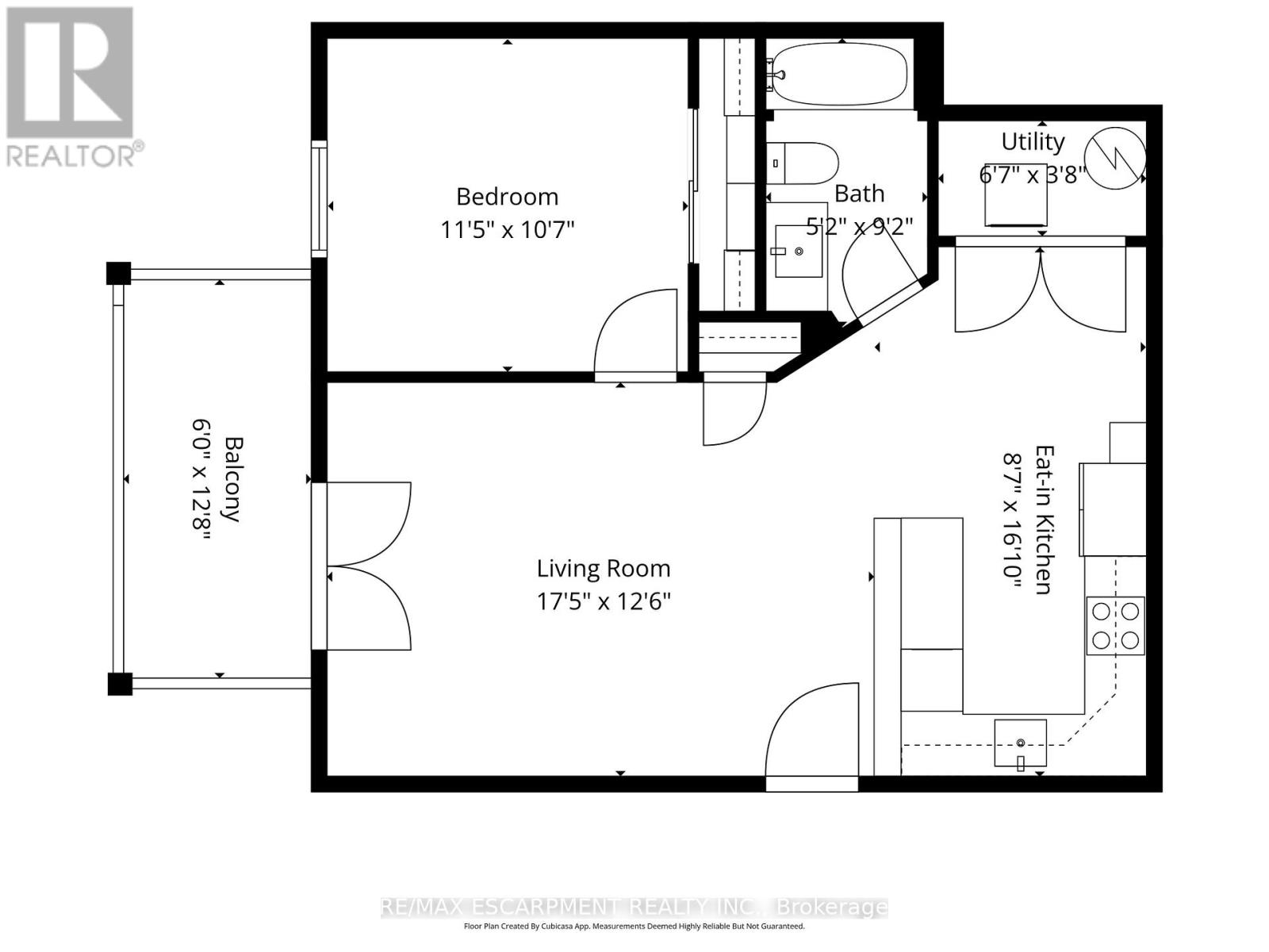
Welcome to this beautifully updated and spacious 1-bedroom condo offering over 600 sq ft of comfortable living. Thoughtfully designed, this unit features a bright and functional layout with plenty of room to live, work, and entertain. The updated kitchen showcases modern finishes, ample cabinetry, and a clean, stylish design that flows seamlessly into the open living and dining area. Large windows fill the space with natural light, enhancing the warm and inviting atmosphere throughout. The generously sized bedroom offers excellent space and comfort, while the overall unit is well-maintained and move-in ready. Perfect for professionals or couples seeking both style and practicality. This unit also includes the added convenience of 1 underground parking space and 1 locker, providing extra value and storage. Ideally located close to shopping, transit, restaurants, and everyday amenities, this condo offers the perfect blend of lifestyle and location.
| Room | Level | Size |
|---|---|---|
| Bedroom | Main level | |
| Bathroom | Main level | |
| Laundry room | Main level | |
| Living room | Main level | |
| Kitchen | Main level |