


















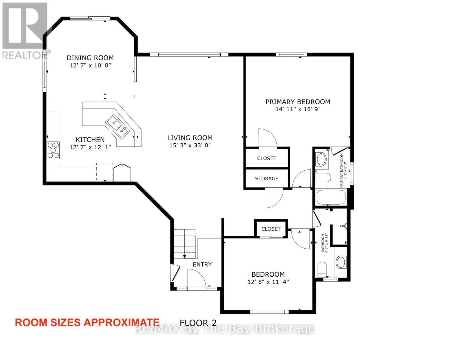
Finding a home that checks all the boxes isn't easy-especially when you want fewer bedrooms but more living space. Every search starts with a wish list: your wants, your needs, and your must-haves. But a two-bedroom main floor with room to truly live can be tricky? That's where this home stands out. With nearly 1,400 square feet, it might be exactly what you've been waiting for and located in one of Wasaga Beach's most mature and desirable neighbourhoods - a community loved by families, couples, and retirees alike.Step inside to a bright open-concept layout filled with natural light from a stunning wall of rear windows. The upgraded kitchen is the heart of the home, featuring newer quartz countertops and updated flooring, making it both stylish and practical for everyday living.The spacious living and dining area walks out to an extended concrete patio, perfect for relaxing, hosting friends, or enjoying the private backyard. Mature cedar trees along both sides add a peaceful feeling and extra privacy.The large primary bedroom includes its own 4-piece ensuite. A second bright bedroom with a cathedral ceiling and feature window sits beside the full main bath, ideal for guests, family, or a home office.The unfinished basement offers amazing future potential with high ceilings, large windows, and a bathroom rough-in already in place. There is plenty of room to add extra bedrooms, a large rec room, gym, or storage.Location makes this home even more special. The beach is just a short drive or a 20-minute walk away. You are also close to the casino, schools, shopping, and everyday amenities. Enjoy quick access to Collingwood for dining, boutiques, and services, while Blue Mountain Village is only 25 minutes away for skiing, golf, and year-round fun.A rare chance to enjoy spacious one-floor living in a mature and highly desirable neighbourhood.
| Room | Level | Size |
|---|---|---|
| Living room | Main level | |
| Kitchen | Main level | |
| Eating area | Main level | |
| Primary Bedroom | Main level | |
| Bedroom | Main level |