














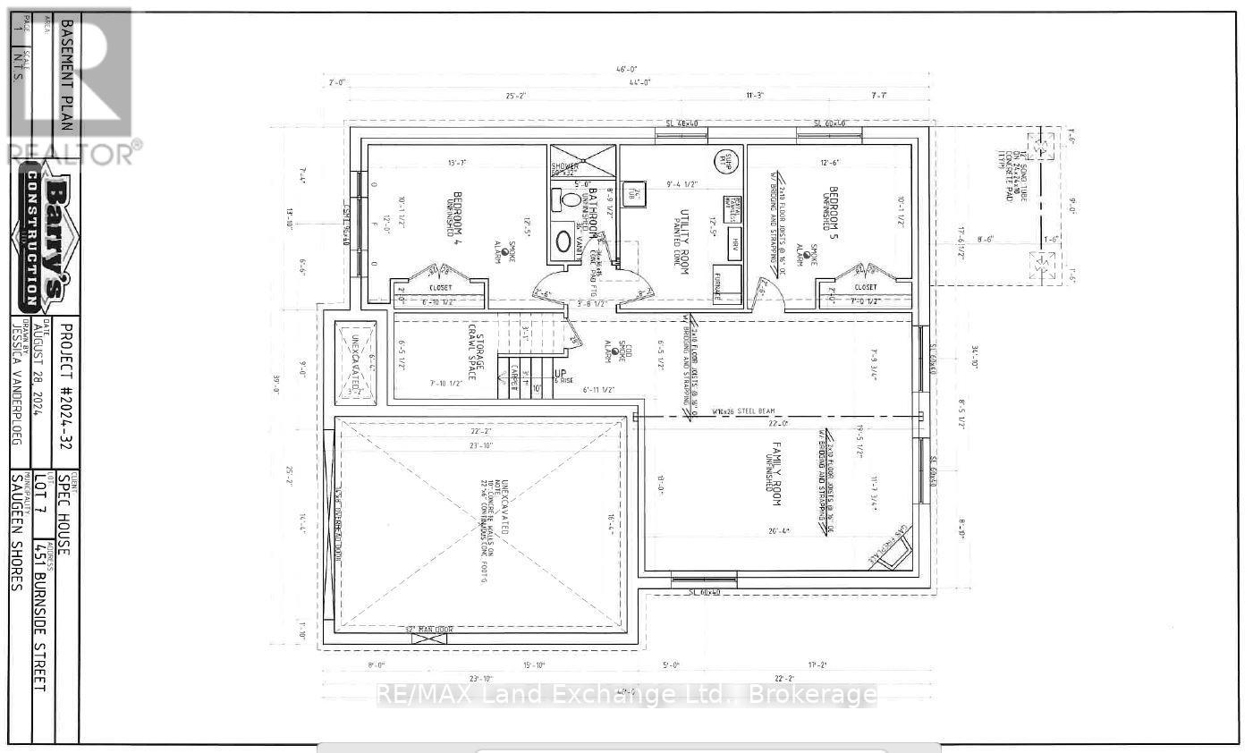
The framing is complete for this 1253 sqft 3 + 2 bedroom raised bungalow at 451 Burnside Street in Port Elgin. The main floor features an open concept living room, dining room, and kitchen with walk out to the backyard, 3 bedrooms, 4pc bath and laundry closet. The basement will be fully finished and include a family room with gas fireplace, 2 more bedrooms, 3pc bath and utility room . The yard will be completely sodded and a double concrete drive will be installed. The house is heated with a gas forced air furnace and cooled with central air. HST is included in the list price provided the Buyer qualifies for the rebate and assigns it to the Builder on closing. Prices subject to change without notice
| Room | Level | Size |
|---|---|---|
| Foyer | Main level | |
| Utility room | Basement | |
| Bedroom 2 | Main level | |
| Kitchen | Main level | |
| Dining room | Main level | |
| Living room | Main level | |
| Primary Bedroom | Main level | |
| Laundry room | Main level | |
| Family room | Basement | |
| Bedroom 4 | Basement | |
| Bedroom 5 | Basement |