

















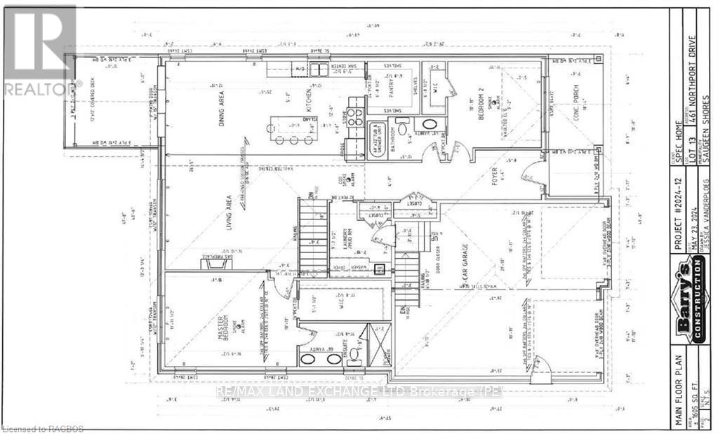
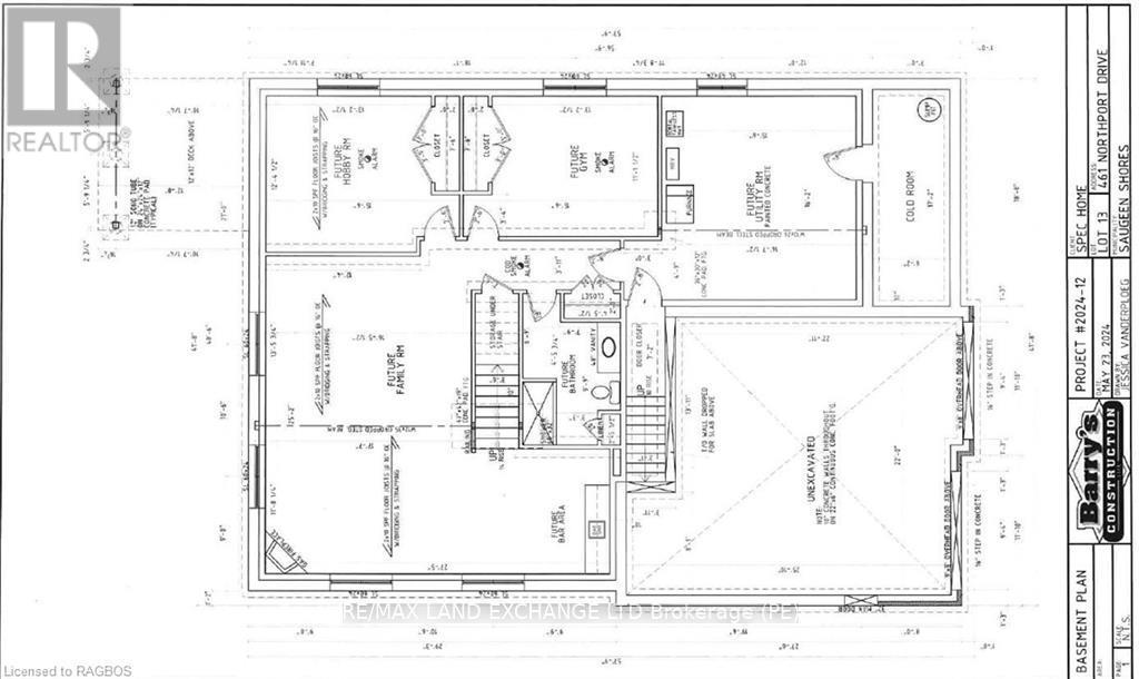
The kitchen is in and this brand new bungalow could be your new home at 461 Northport Drive in Port Elgin in just 30 days. One of the Builder's most popular plans; could it be the 6'8 x 6'8 walk in pantry, large finished basement, covered front porch, vaulted ceiling in the LR / DR & Kitchen or covered back deck that make it a best seller. The main floor boasts 1605 sqft of living space and the basement is accessible from the 2 car garage that measures 25'8 x 21'10. Standard features include Quartz kitchen counter tops, gas fireplace, central air, main floor laundry with cabinets for added storage, automatic garage door openers, double concrete drive, sodded yard and more. HST is included in the list price provided the Buyer qualifies for the rebate and assigns it to the Builder on closing.
| Room | Level | Size |
|---|---|---|
| Bedroom 4 | Basement | |
| Utility room | Basement | |
| Family room | Basement | |
| Foyer | Main level | |
| Bedroom 2 | Main level | |
| Laundry room | Main level | |
| Primary Bedroom | Main level | |
| Great room | Main level | |
| Dining room | Main level | |
| Kitchen | Main level | |
| Family room | Basement | |
| Bedroom 3 | Basement |