



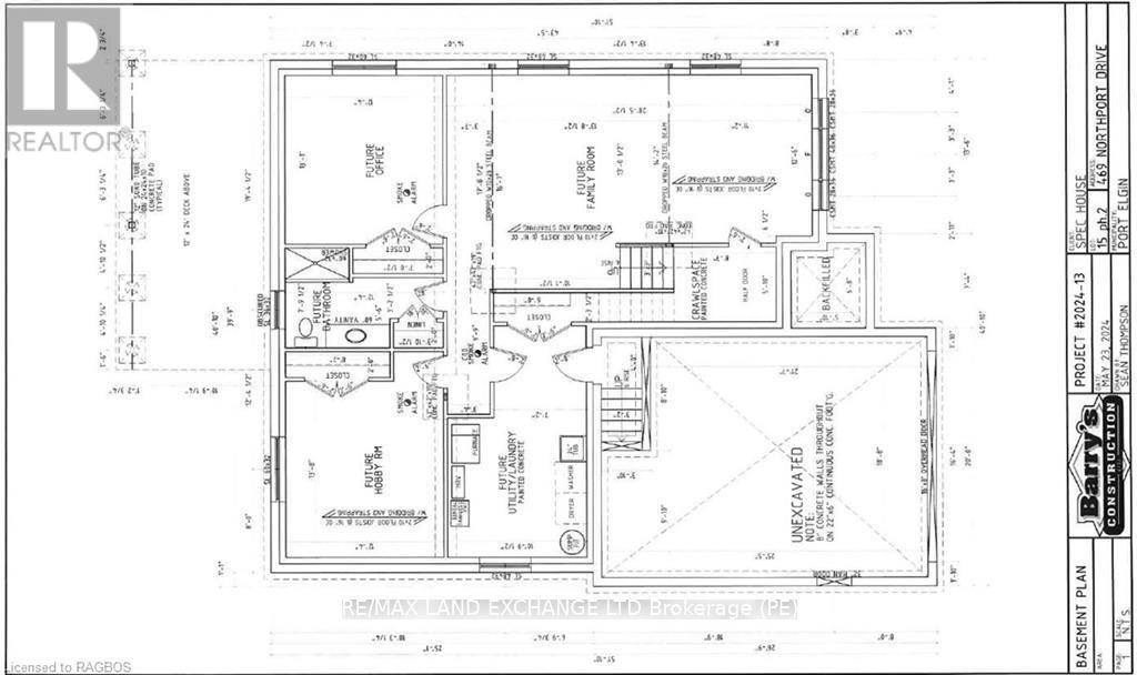
This raised bungalow at 469 Northport Drive is currently being finished on the outside; and has 2 + 2 bedrooms and 3 full baths. The main floor is 1397 sqft; with an open concept living room, dining area and kitchen through the center that walks out to a partially covered deck measuring 12 x 24. The entire main floor with be hardwood and ceramic with Quartz counter tops in the kitchen, gas fireplace in the great room and tiled shower in the ensuite. The basement features a family room, 2 bedrooms, 3pc bath and laundry room with access to the 2 car garage. HST is including in the asking price provided the Buyer qualifies for the rebate and assigns it to the Builder on closing. Prices subject to change without notice.
| Room | Level | Size |
|---|---|---|
| Laundry room | Basement | |
| Foyer | Main level | |
| Great room | Main level | |
| Dining room | Main level | |
| Kitchen | Main level | |
| Primary Bedroom | Main level | |
| Bedroom | Main level | |
| Family room | Basement | |
| Bedroom | Basement | |
| Bedroom | Basement |